Weiterer Kurs: Grundlagen der Bedienung der LINEAR Solutions für AutoCAD
Auf unsere E-Learning-Plattform steht Ihnen ab sofort der Kurs „Grundlagen der Bedienung der LINEAR Solutions für AutoCAD“ zur Verfügung. Wir bieten Ihnen einen allgemeinen Überblick über die LINEAR Benutzeroberfläche und zeigen Ihnen die verschiedenen Funktionen des LINEAR Control Board.
Die Kurse stehen allen LINEAR Kunden kostenfrei zur Verfügung.
Kurs: Grundlagen der Bedienung der LINEAR Solutions für AutoCAD
Inhalt
Allgemein
Über den Kurs Grundlagen der Bedienung der LINEAR Solutions für AutoCAD
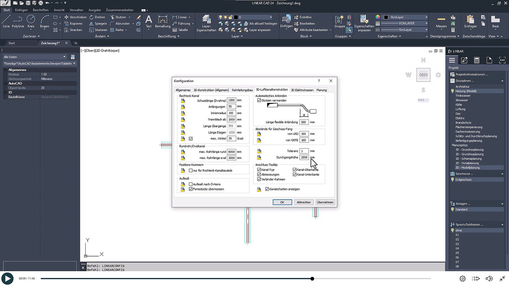
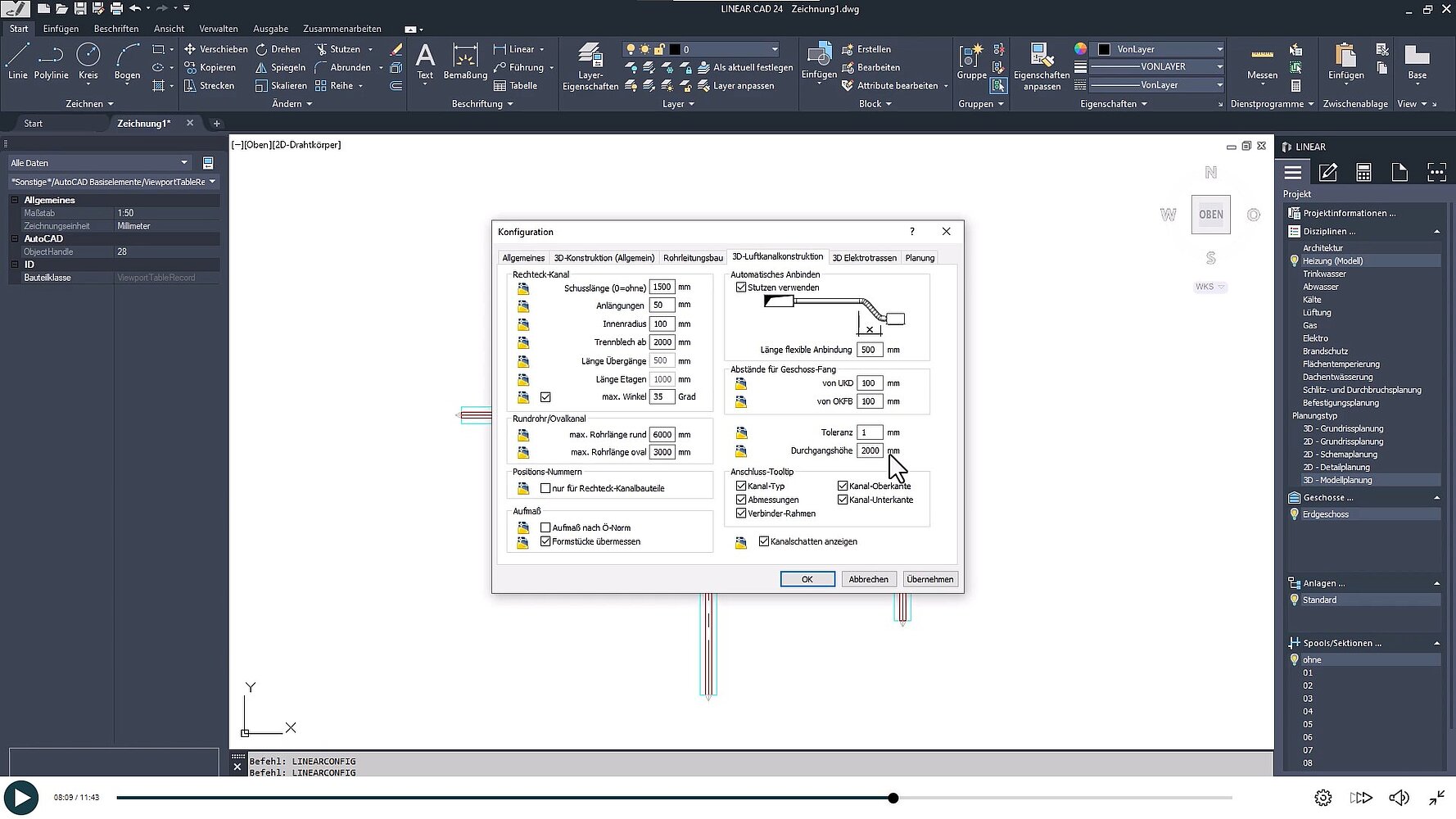
Das LINEAR Control Board
Control Board – programmübergreifende Einstellungen und Konfiguration
Das Cookie-Fenster wird durch eine Browser-Erweiterung unterdrückt. Bitte geben Sie die Website frei.
Hinweis zu Cookies
Unsere Webseite verwendet Cookies. Diese haben zwei Funktionen: Zum einen sind sie erforderlich für die grundlegende Funktionalität unserer Website. Zum anderen können wir mit Hilfe der Cookies unsere Inhalte für Sie immer weiter verbessern. Hierzu werden pseudonymisierte Daten von Website-Besuchern gesammelt und ausgewertet. Das Einverständnis in die Verwendung der Cookies können Sie jederzeit widerrufen. Weitere Informationen zu Cookies auf dieser Website finden Sie in unserer Datenschutzerklärung und zu uns im Impressum.