What's new

Hier finden Sie alle neuen Features der aktuellen Version sowie alle Neuerungen der letzten Versionen! Wir aktualisieren die Liste mit Erscheinen der Features zum jeweiligen Update (Feature Pack). Das Update auf die aktuellste Version können Sie komfortabel über das LINEAR Installation Center herunterladen und installieren. 

Hinweis: Ein Großteil der neuen Funktionen steht ausschließlich Subscriptionkunden zur Verfügung. 

Bei Major Releases (neue Versionsnummer) benötigen Sie die zugehörigen Lizenzen. Diese können Sie als Subscriptionkunde auf unserer Kontaktseite anfragen.

Neue Lizenzen anfragen

Filter:

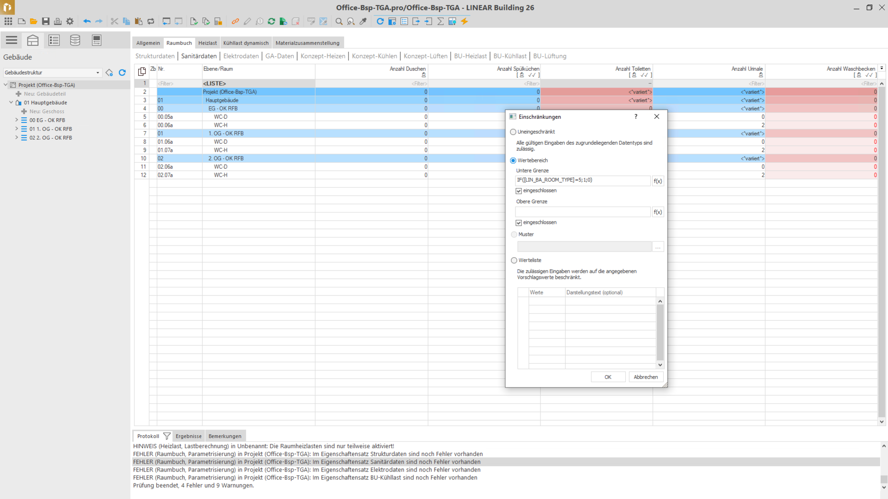
Neues Raumbuchmodul für eine ideale Raumdatenverwaltung

LINEAR Solutions V26.0

Das neue Raumbuchmodul in LINEAR Building stellt einen entscheidenden Schritt für die BIM-konforme Planung dar. Es ermöglicht in frühen Planungsphasen die Verwaltung digitaler, maschinenlesbarer Raumparameter – unabhängig davon, ob ein vollständiges CAD-Gebäudemodell vorliegt oder die Daten aus Excel stammen. Die seit Version 25.2 bestehende Excel-Raumbuchsynchronisation wurde in Version 26.0 umfassend erweitert. Das neue Modul kann prinzipiell alle denkbaren Raumparameter speichern, anzeigen, bearbeiten, prüfen und berechnen. Dabei werden native LINEAR-Parameter, benutzerdefinierte Parameter sowie CAD- und Excel-Importe gleichermaßen unterstützt.

Für eine effiziente Organisation nutzen Sie individuell anpassbare Strukturkonfigurationen: Neben der klassischen Gebäudestruktur können Räume nach Raumtyp, Zonen oder anderen Kriterien gruppiert werden. Die Datenerfassung erfolgt in thematisch gegliederten Eigenschaftensätzen, die übersichtlich tabellarisch dargestellt werden. Intelligente Filter, Sortierfunktionen und automatische Plausibilitätsprüfungen helfen bei der sofortigen Erkennung von Fehlern und Abweichungen.

Die im Raumbuchmodul gesammelten Informationen sind eine wertvolle Grundlage für Berechnungen, z. B. der Heiz- und Kühllast, und werden über alle relevanten LINEAR-Planungsmodule hinweg synchronisiert. Das Raumbuch dient als zentrale Datensammelstelle, die dauerhaft gepflegt und von allen Projektbeteiligten genutzt werden kann.

Vorteile auf einen Blick:

  • BIM-konforme Verwaltung digitaler Raumparameter aus CAD oder Excel
  • Flexible und individuelle Strukturkonfigurationen für maßgeschneiderte Gliederungen
  • Thematisch sortierte Eigenschaftensätze mit Filter-, Sortier- und Plausibilitätsfunktionen
  • Unterstützung der automatischen Datenprüfung und Soll-/Ist-Vergleiche
  • Nahtlose Synchronisation und Datenfluss über alle Planungsphasen und Module hinweg
  • Zentrale Datensammlung für kollaboratives Arbeiten und effiziente Projektsteuerung

Mehr erfahren...

Automatische Dimensionierung in der Trassenplanung

LINEAR Solutions V26.0

Die bewährte Trassenplanung wurde um ein leistungsstarkes Berechnungsmodul erweitert. Damit können bereits in frühen Planungsphasen Kanal- und Leitungsdimensionen einfach, schnell und präzise über die Verteilnetz-Topologie der geplanten Trassen ermittelt werden – auf Basis vorhandener Rauminformationen.

Leistungs- und Volumenstromdaten werden direkt aus den MEP-Räumen übernommen. So können Planer bereits in einer frühen Phase zentrale Gebäudedaten in LINEAR Building erfassen und automatisch in die MEP-Räume übertragen:

  • Wärmebedarf → überschlägige Heizlast
  • Kältebedarf → Kühllast nach Kurzverfahren
  • Außenluftvolumenströme → überschlägige Luftmengenermittlung
  • Abwasser-/Trinkwasserverbraucher → Erfassung über das neue Raumbuchmodul

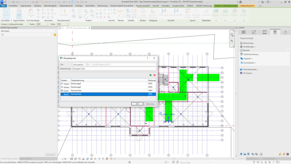
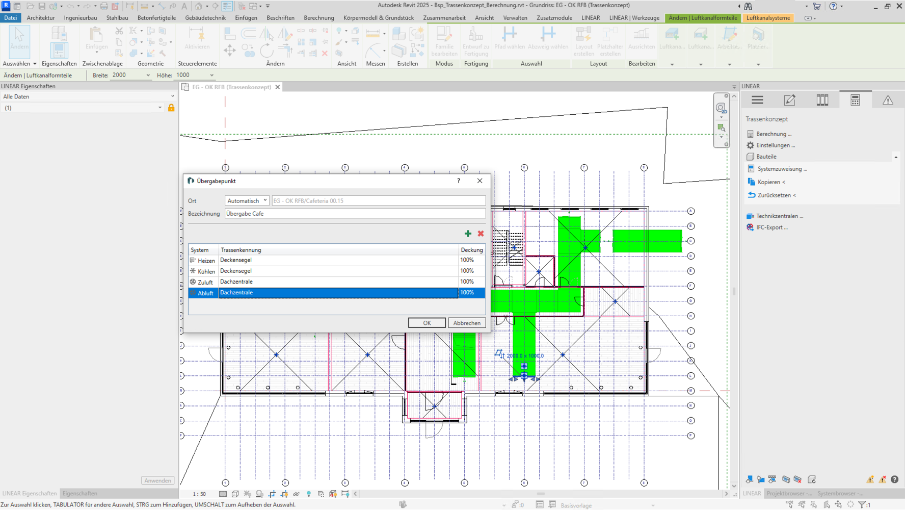
Über Einspeise-, Sammel- und Übergabepunkte – ähnlich den bekannten „Teilnetzstart/-ende"-Objekten – werden den Trassen weitere dimensionierungsrelevante Informationen zugewiesen:

  • Definition von Erzeugeranlagen
  • Zugeordnete Systemklassen
  • Spreizung (Vorlauf/Rücklauf)
  • Deckungsgrad der definierten Bedarfe durch jeweilige Systeme
  • Weitere Randbedingungen für die Berechnung

Durch das Zusammenfassen mehrerer Räume zu Versorgungsbereichen mit Sammelpunkten lassen sich Haupttrassen besonders effizient dimensionieren. Über die konstruierten Trassen und passend zugewiesenen Systeme in den Start- und Endbauteilen werden die Leistungen automatisch eingesammelt und abschnittsweise dimensioniert. Die ermittelten Dimensionen können anschließend direkt im bekannten Trassenkonzept weiterverwendet werden – von der Definition der Querschnitte bis zur automatischen Generierung vordimensionierter Leitungen im Modell.

Vorteile auf einen Blick

  • Höhere Planungssicherheit durch frühe, präzise Dimensionierung
  • Reduzierter Planungsaufwand durch automatische Berechnung in frühen Phasen
  • Durchgängige Datenkonsistenz von der Bedarfsdefinition bis zur Modellgenerierung
  • Effiziente, transparente und BIM-konforme Planung über alle Gewerke

Mit dem neuen Berechnungsmodul wird die Trassenplanung zu einem integralen Bestandteil der frühen Entwurfs- und Vorplanungsphase.

Mehr erfahren...

Solutions for Revit

3D-Visualisierung von MEP-Raum-Parametern

LINEAR Solutions V26.0

Mit der Raumdaten-Visualisierung stellen Sie sämtliche Parameter Ihrer MEP-Räume anschaulich in einer 3D-Ansicht dar. Die Funktion erzeugt farbige Visualisierungskörper für Ihre ausgewählten Raumparameter zunächst in einer temporären Ansicht – ideal zur schnellen Analyse und Bewertung Ihrer Planungsdaten. So haben Sie eine anschauliche Visualisierung in allen Planungsphasen, die Sie für unterschiedlichste Zwecke einsetzen können: Überprüfen Sie beispielsweise in frühen Phasen Raumgrößen, Belegungen oder Raumtypen, oder kontrollieren Sie schnell und intuitiv die Auslegungstemperaturen Ihrer Planung. Stetige Parameter wie Temperaturen oder Volumenströme werden über anpassbare Farbverläufe dargestellt, diskrete Parameter wie Raumtypen oder Nutzungsarten automatisch eingefärbt. Sobald die Visualisierung Ihren Anforderungen entspricht, können Sie die temporäre Ansicht speichern und damit in eine dauerhaft verfügbare Revit-Ansicht umwandeln, die Sie jederzeit für Pläne oder Präsentationen nutzen können.

Vorteile auf einen Blick

  • Schnelle Analyse durch temporäre 3D-Ansichten mit farbigen Visualisierungskörpern und automatischer Legende
  • Flexible Visualisierung stetiger und diskreter Datentypen mit individuellen Farbschemata
  • Einsetzbar in allen Planungsphasen – von der frühen Raumkonzeption bis zur finalen Auslegungsprüfung
  • Speicherung wiederverwendbarer Ansichten für professionelle Dokumentation und Präsentationen

Diese innovative Visualisierungsfunktion macht komplexe Raumdaten sofort erfassbar und gibt Ihnen volle Kontrolle über Ihre Analyseansichten in jedem Projektstadium.

Mehr erfahren...

Solutions for Revit
Kundenwunsch

Neutrale Stücklisten auf Knopfdruck – Herstellerinformationen gezielt entfernen, Kurztexte individuell bearbeiten

LINEAR Solutions V26.0

Sie möchten Ihre Berechnungen mit Herstellerbauteilen durchführen, benötigen aber herstellerneutrale Stücklisten? Mit der Option „Material herstellerneutral ausgeben“ ist das ab sofort problemlos möglich. Sämtliche Herstellerinformationen werden automatisch aus der Stückliste entfernt – ideal für neutrale Ausschreibungen oder projektübergreifende Listenausgaben.

Zusätzlich können Sie alle Kurztexte individuell anpassen, etwa jene, die aus dem CAD-Browser oder von User-Armaturen übernommen wurden. So ergänzen Sie flexibel projektspezifische Infos und gestalten Ihre Stücklisten exakt nach Ihren Anforderungen.

Vorteile auf einen Blick

  • Herstellerneutrale Stückliste mit nur einem Klick
  • Kurztexte individuell anpassbar für vollständige Kontrolle
  • Flexible Ergänzung zusätzlicher Informationen jederzeit möglich
  • Optimale Transparenz für Ausschreibungen, Vergaben und Dokumentation
Solutions for AutoCAD / CADinside
Solutions for Revit

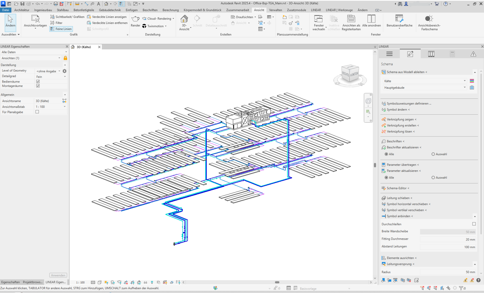
Effiziente Schema-Bearbeitung mit dem neuen LINEAR Schema-Editor

LINEAR Solutions V26.0

Der Schema-Editor revolutioniert die Schemabearbeitung in Revit: Bearbeiten Sie Ihre Schemata direkt – egal, ob sie aus Revit-Modellen abgeleitet oder aus LINEAR Building übertragen wurden – ohne dabei Komponentenverbindungen zu verlieren. Beim Verschieben von Elementen werden Leitungen und eingebaute Komponenten automatisch nachgeführt. Keine manuellen Reparaturen mehr, keine aufgebrochenen Verbindungen. Mit intelligenten Layoutfunktionen (Umlegen, Flippen, Ausrichtung) passen Sie Ihre Schemata flexibel an neue Anforderungen an – in Sekunden statt Stunden. Alle Änderungen werden zuverlässig in die Zeichenansicht zurückgeschrieben. So bleibt Ihre Schemabearbeitung konsistent und effizient.

Vorteile auf einen Blick

  • Automatische Nachführung aller Verbindungen – kein Nachbearbeiten nötig
  • Intelligente Layoutfunktionen für schnelle und flexible Anpassungen
  • Flexible Layoutanpassung durch Umlegen, Flippen und Ausrichtungsfunktionen
  • Volle Modellintegrität – alle Änderungen in die Zeichenansicht zurückschreibbar

Mehr erfahren...

Solutions for Revit
Kundenwunsch

Neue und überarbeitete Lüftungsfamilien – 20 neue Komponenten und intelligente Verbesserungen

LINEAR Solutions V26.0

Basierend auf zahlreichen Wünschen aus dem LINEAR Idea Channel wurden die Lüftungsfamilien umfassend erweitert und überarbeitet. Mit Version 26.0 stehen Ihnen 20 neue Komponenten zur Verfügung – alle vollständig parametrierbar. Je nach Typ definieren Sie flexibel Sockelhöhen, Winkel oder Lamellenanzahl und passen die Komponenten damit präzise an Ihre Anforderungen an.

Die neuen Familien umfassen:

  • Ansaugbögen
  • Ausblasbögen
  • Doppel-Ansaugbögen
  • Doppel-Ausblasbögen
  • Außenlufthauben
  • Deflektorhauben
  • Lamellenhauben
  • Horizontaler Regenabscheider
  • Dachdurchführung für Flach- und Schrägdächer (isoliert und nicht isoliert)

Der Großteil steht Ihnen für rechteckige und runde Luftkanäle zur Verfügung.

Zusätzlich wurden bestehende Komponenten intelligent überarbeitet: Symbole sind jetzt auch in 3D-Ansichten auf den Bauteilen erkennbar – Volumenstromregler, Filter und Absperrklappen werden sofort identifiziert. Ebenfalls lassen sich Motor-Positionen jetzt mittels Checkbox verschieben, ohne das Bauteil zu drehen.

Die überarbeitete T-Stück-Anbindung schlägt automatisch praxisnahe Verbindungen vor, wenn unterschiedliche Dimensionen aufeinandertreffen. Mit den neuen, flexibel konfigurierbaren Familien für Muffen und Nippel entstehen so produktionsreife Verbindungen.

Vorteile auf einen Blick

  • 20 neue Komponenten, vollständig parametrierbar für maximale Flexibilität
  • Bauteile anhand von Symbolen auch in 3D-Ansichten sofort erkennbar

Intelligente Autoverbindungen mit variablen Reduzierungsvorschlägen

Solutions for Revit
Kundenwunsch

Nachführen von Befestigungen bei Positionsänderungen der Leitungen

LINEAR Solutions V26.0

In dynamischen Bauprozessen kommt es selbst in späten Planungsphasen häufig vor, dass Leitungen oder Kanäle neu positioniert werden müssen. Damit Ihre Planung dabei jederzeit konsistent bleibt, steht Ihnen ab Version 26.0 die neue Funktion zur Nachführung von Befestigungen zur Verfügung. Befestigungen werden automatisch an die veränderte Position der zugehörigen Leitungen oder Kanäle angepasst – so bleiben Ihre Modelle aktuell, Abweichungen werden vermieden und die Nacharbeit deutlich reduziert.

Vorteile auf einen Blick

  • Erhebliche Zeitersparnis bei Planungsänderungen
  • Automatische Anpassung von Befestigungen bei geänderten Leitungs- oder Kanalpositionen
  • Konsistente Modelle ohne manuelle Nachbearbeitung
  • Deutlich reduzierte Fehlerquote durch automatisierte Aktualisierung

Diese intelligente Automatisierung sorgt für durchgängig aktuelle Montageplanung und gibt Ihnen mehr Sicherheit bei kurzfristigen Projektanpassungen.

Solutions for Revit
Kundenwunsch

Befestigungen bei verknüpften TGA-Modellen

LINEAR Solutions V26.0

Mit Version 26.0 erfüllen wir einen häufig geäußerten Kundenwunsch aus dem LINEAR Idea Channel: die flexible Platzierung von Befestigungen auch bei verknüpften TGA-Modellen. Sie organisieren Ihre Projekte in gewerkeweise getrennten Modellen und möchten Befestigungen in einem separaten Modell abbilden? Ab sofort können Sie die Befestigungsautomatik auch auf die Kanäle und Leitungen in einer Verknüpfung anwenden. Diese Flexibilität passt sich nahtlos Ihrer individuellen Planungsstruktur an und ermöglicht eine präzisere Montageplanung.

Vorteile auf einen Blick

  • Befestigungen funktionieren jetzt auch bei verknüpften Modellen
  • Freie Wahl der Modellstruktur nach Ihren Projektanforderungen
  • Optimierte Zusammenarbeit bei gewerkeweise geteilten Planungsprozessen
  • Präzise Montageplanung über Modellgrenzen hinweg

Mit dieser von der Community gewünschten Funktion erweitern wir Ihre Gestaltungsfreiheit und unterstützen moderne, kollaborative BIM-Workflows noch besser.

Solutions for Revit
Kundenwunsch

Automatische Schemaerstellung jetzt auch für Kälte

LINEAR Solutions V26.0

Mit Version 26.0 wird die automatische Schemaerstellung um das Gewerk Kälte erweitert. Erstellen Sie direkt aus Ihrem 3D-Modell detaillierte Kälteschemata mit passenden Symbolen und vollständiger Verknüpfung zu allen Bauteilen. Ihr 3D-Modell bleibt dabei die zentrale Informationsquelle, während Sie bei Bedarf gezielte manuelle Anpassungen jederzeit vornehmen können. Auch dieses Feature ist ein Resultat der vielen Votes aus unserem Idea Channel.

Vorteile auf einen Blick

  • Automatische Schemaerstellung für Kältesysteme direkt aus dem 3D-Modell
  • Konsistente Symbole und vollständige Verknüpfung zu Modellelementen
  • Einheitliche Arbeitsweise für Heizung, Trinkwasser und Kälte
  • Flexible manuelle Nachbearbeitungen jederzeit möglich
Solutions for Revit
Kundenwunsch

Herstellerdaten aus dem CAD-Browser auf neutrale Bauteile übertragen

LINEAR Solutions V26.0

Eine häufige Anforderung aus dem Idea Channel: Herstellerdaten nutzen, ohne das bestehende Bauteil im Modell zu ersetzen. Ab Version 26.0 ist genau das möglich. Die neue Funktion ermöglicht es Ihnen, relevante Herstellerdaten aus dem CAD-Browser direkt auf bereits platzierte Bauteile in Ihrem Modell zu übertragen – ohne die Geometrie auszutauschen. Insbesondere in der Lüftung erhalten Sie so die Möglichkeit, die berechnungsrelevanten Daten aus dem CAD Browser auf die Bauteile im Modell zu übertragen und in der Berechnung zu nutzen. Auch in den anderen Gewerken lassen sich Herstellerinformationen aus dem CAD Browser übertragen, wobei hier in der Berechnung die in Analyse konfigurierten VDI-Daten (z.B. aus dem Armaturendialog) in der Berechnung genutzt werden. 

So arbeiten Sie mit realen Herstellerwerten für präzisere Berechnungen und eine realitätsnahe Planung, während Ihr Modell neutral und flexibel bleibt. Das ist besonders wertvoll, wenn Sie zunächst mit generischen Bauteilen planen und diese später mit konkreten Produktdaten anreichern möchten – ohne das Modell grundlegend ändern zu müssen. Ihre Planungsfreiheit bleibt maximal, die Datenqualität steigt deutlich. 

Vorteile auf einen Blick: 

  • Herstellerdaten aus dem CAD-Browser auf bestehende Bauteile übertragen – ohne Bauteiltausch 
  • Modell bleibt neutral und flexibel, aber mit realen Herstellerwerten 
  • Präzisere Berechnungen durch hochwertige Produktdaten 
  • Keine Modelländerung notwendig – maximale Planungsfreiheit 
Solutions for AutoCAD / CADinside
Solutions for Revit
Kundenwunsch

Einfache Höhenanpassung von Bauteilen über LINEAR Eigenschaften

LINEAR Solutions V26.0

Mit der radikalen Vereinfachung der Höhenanpassungen von Bauteilen und Bauteilgruppen erfüllen wir einen weiteren Kundenwunsch aus dem LINEAR Idea Channel. Neue Höhenparameter ermöglichen es Ihnen, einzelne Bauteile oder ganze Bauteilgruppen komfortabel per direkter Eingabe in der Höhe zu verschieben. Ob Sie ein Bauteil innerhalb eines Geschosses anpassen oder es komplett in ein anderes Geschoss verschieben möchten – beides gelingt nun direkt und intuitiv über die LINEAR Eigenschaften.

Vorteile auf einen Blick

  • Direkte Höhenangabe für einzelne Bauteile oder ganze Bauteilgruppen
  • Geschossübergreifende Verschiebungen ohne manuelles Verschieben
  • Deutliche Zeitersparnis bei Modellanpassungen und Planungsänderungen
Solutions for AutoCAD / CADinside

Verbesserte Filterfunktion im CAD-Browser – schneller zur richtigen Produktauswahl

LINEAR Solutions V26.0

Die bereits in Version 25 eingeführte Filterfunktion im LINEAR CAD-Browser wurde in Version 26.0 deutlich erweitert und optimiert. Die Produktauswahl wird dadurch noch schneller, komfortabler und zielgerichteter – insbesondere bei großen Herstellerkatalogen und komplexen Suchanfragen.

Drei zentrale Verbesserungen machen den Unterschied: Die herstellerübergreifende Produktauswahl kombiniert verschiedene Filtereigenschaften automatisch und schränkt die Anzeige über alle verfügbaren Hersteller hinweg ein – so finden Sie mühelos Bauteile, die exakt Ihren Anforderungen entsprechen. Die neue interaktive Breadcrumb-Navigation oberhalb der Produktliste ermöglicht es Ihnen, bequem zwischen Hierarchiestufen zu wechseln und gezielt in bestimmte Kategorien zu springen. Und schließlich können Sie Ihre eingestellten Filter jetzt speichern und wiederverwenden: Temporär gespeicherte Filter lassen sich auf Wunsch als Favorit hinterlegen – ideal für häufig genutzte Suchanfragen.

Vorteile auf einen Blick:

  • Herstellerübergreifende Produktfilterung für präzise Suchergebnisse
  • Interaktive Breadcrumb-Navigation für schnelles Wechseln zwischen Hierarchiestufen
  • Erheblich schnellere und effizientere Bauteilauswahl in großen Katalogen

Mehr erfahren...

Solutions for AutoCAD / CADinside
Solutions for Revit