Neuer E-Learning-Kurs: Allgemeines für LINEAR Building
In der LINEAR-Softwarefamilien bildet LINEAR Building das Herzstück für die Berechnung von Gebäudelasten. Hier können Sie die Heiz- und Kühllast für Ihre Gebäude ermitteln und diese in den Auslegungsmodulen durch Heizkörper oder Heiz- und Kühlflächen decken. Die errechneten Gebäudelasten können auf Wunsch direkt mit den von Ihnen ausgewählten Herstellerprodukten ausgelegt und in ein verbundenes CAD-Programm eingezeichnet werden. In diesem Kurs erhalten Sie einen Überblick über die Benutzeroberfläche und den allgemeinen Aufbau von LINEAR Building.
Kurs: Allgemeines für LINEAR Building
Inhalt
1. Allgemeines
1.1 Über LINEAR Building
2. Benutzeroberfläche
2.1 Modulübersicht und Gebäudestruktur
2.2 Navigationsbereich
2.3 Menüleiste
2.4 Protokoll, Ergebnisse und Bemerkungen
3. Konfiguration
3.1 Region, Sprache und Firmenlogo
3.2 Datensicherheit
4 Erstellen einer Vorlagendatei
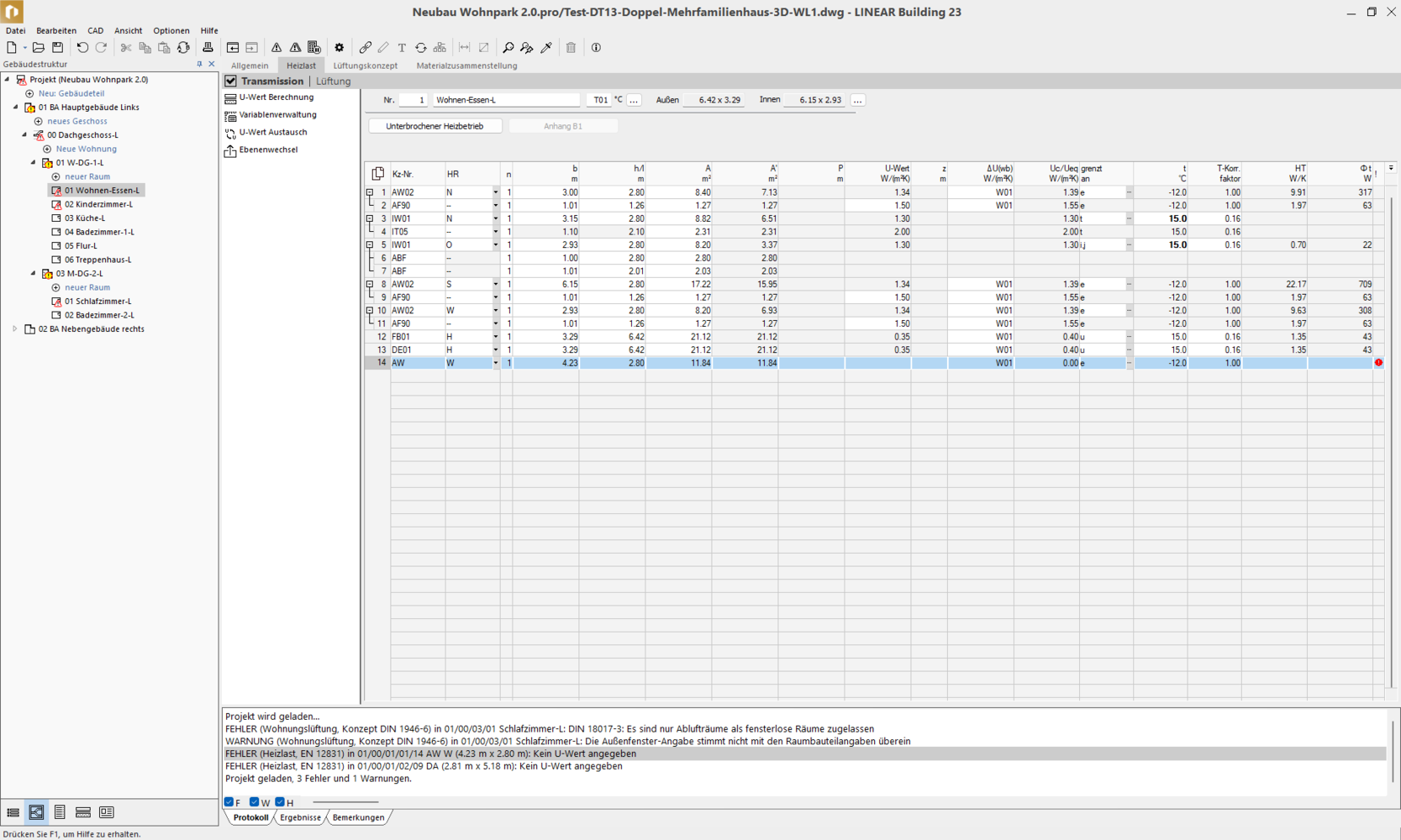
In diesem Video gehen wir auf den Aufbau der Benutzeroberfläche von LINEAR Building ein. Grundlegend kann die Oberfläche in die fünf angezeigten Bereiche eingeteilt werden, die bei jedem Programmstart automatisch aktiv sind.
Wir zeigen Ihnen die einzelnen BEriche der Oberfläche und erläutern diese im Detail. Im Tab "Protokoll" beispielsweise werden projektweit aktuell gefundene Fehler, Warnungen und Hinweise angezeigt.
Durch Klick auf einen Eintrag, können Sie direkt zur Ursache der Meldung navigieren. Das Programm öffnet automatisch den richtigen Bereich in der Gebäudestruktur, in der der Fehler behoben werden kann.
Das Cookie-Fenster wird durch eine Browser-Erweiterung unterdrückt. Bitte geben Sie die Website frei.
Hinweis zu Cookies
Unsere Webseite verwendet Cookies. Diese haben zwei Funktionen: Zum einen sind sie erforderlich für die grundlegende Funktionalität unserer Website. Zum anderen können wir mit Hilfe der Cookies unsere Inhalte für Sie immer weiter verbessern. Hierzu werden pseudonymisierte Daten von Website-Besuchern gesammelt und ausgewertet. Das Einverständnis in die Verwendung der Cookies können Sie jederzeit widerrufen. Weitere Informationen zu Cookies auf dieser Website finden Sie in unserer Datenschutzerklärung und zu uns im Impressum.