Manuelle Schemaerstellung in AutoCAD – Neuer E-Learning-Kurs online
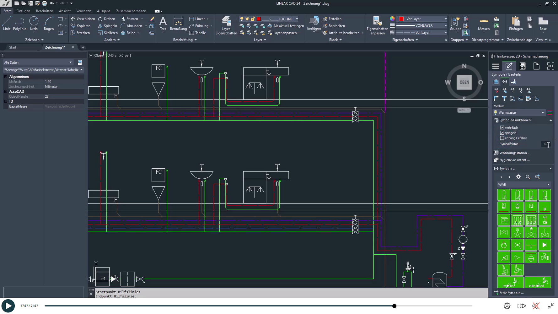
In diesem Kurs lernen Sie, wie Sie Schemata verschiedener Disziplinen für besondere Situationen in Autodesk AutoCAD erstellen können. Hierbei lernen Sie Schritt für Schritt, wie Sie auch ohne den LINEAR Schemagenerator ein berechenbares Schema erstellen können. Dabei zeigen wir Ihnen, wie Geschosse erstellt und verändert und wie Bauteile platziert und angeschlossen werden.
Die Kurse stehen allen LINEAR Kunden kostenfrei zur Verfügung.
Kurs: Schema manuell erstellen
Inhalt
Allgemeines
Erstellung eines Schemas in der Disziplin Trinkwasser
Das Cookie-Fenster wird durch eine Browser-Erweiterung unterdrückt. Bitte geben Sie die Website frei.
Hinweis zu Cookies
Unsere Webseite verwendet Cookies. Diese haben zwei Funktionen: Zum einen sind sie erforderlich für die grundlegende Funktionalität unserer Website. Zum anderen können wir mit Hilfe der Cookies unsere Inhalte für Sie immer weiter verbessern. Hierzu werden pseudonymisierte Daten von Website-Besuchern gesammelt und ausgewertet. Das Einverständnis in die Verwendung der Cookies können Sie jederzeit widerrufen. Weitere Informationen zu Cookies auf dieser Website finden Sie in unserer Datenschutzerklärung und zu uns im Impressum.