Mit der Version 24 stellen wir die neue Schemaplanung für Revit vor. Damit Sie direkt loslegen können, steht Ihnen nun auch ein passender E-Learning-Kurs zur Verfügung, in dem Sie erfahren, wie Sie aus einem 3D-Modell ein Schema ableiten.
Wir zeigen Ihnen zunächst, wie das Modell idealerweise aufgebaut ist, um ein perfektes Schema zu erstellen. Insbesondere die Geschosstabelle hilft dabei, das Ableiten des Schemas ideal vorzubereiten.
Anschließend können Sie noch einige Vorgaben zur Erstellung des Schemas festlegen, bevor die Ableitung starten kann.
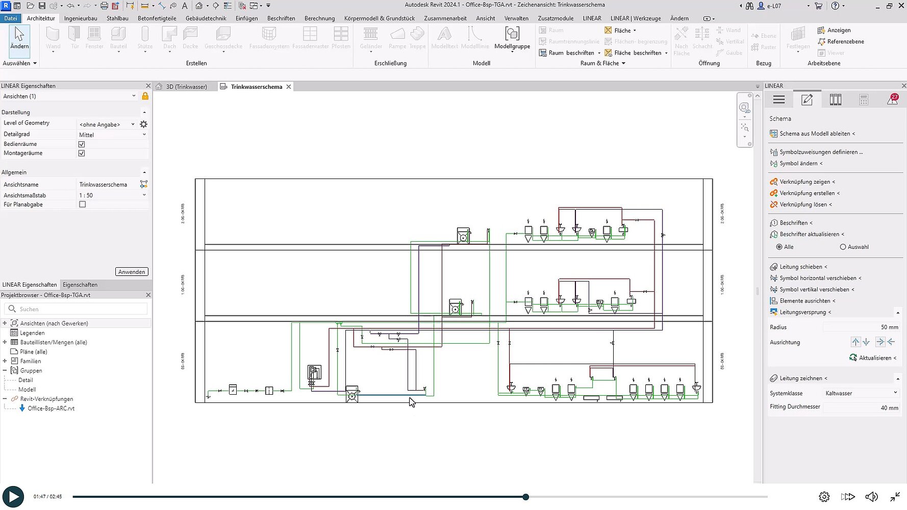
Dann können Sie basierend auf Ihrem 3D Modell ...
... einfach das Schema ableiten lassen.
Ebenfalls zeigen wir Ihnen, wie Sie Anpassungen vornehmen. So können Sie beispielsweise die gewünschten Symbole global oder für einzelne Komponenten festlegen.
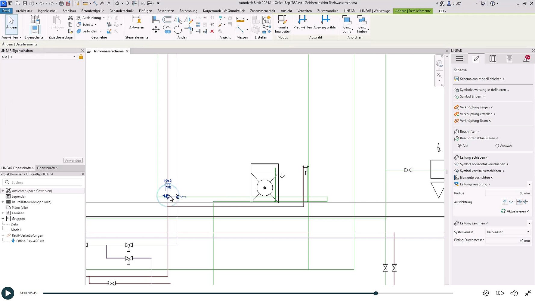
Ebenfalls können Sie noch Anpassungen an den Leitungen vornehmen, um die Darstellung zu optimieren.
Wahlweise können Sie auch die Darstellungen der einzelnen Leitungen anpassen.
Abschließend zeigen wir Ihnen sowohl die automatische als auch die manuelle Beschriftung Ihres Schemas.
Das Cookie-Fenster wird durch eine Browser-Erweiterung unterdrückt. Bitte geben Sie die Website frei.
Hinweis zu Cookies
Unsere Webseite verwendet Cookies. Diese haben zwei Funktionen: Zum einen sind sie erforderlich für die grundlegende Funktionalität unserer Website. Zum anderen können wir mit Hilfe der Cookies unsere Inhalte für Sie immer weiter verbessern. Hierzu werden pseudonymisierte Daten von Website-Besuchern gesammelt und ausgewertet. Das Einverständnis in die Verwendung der Cookies können Sie jederzeit widerrufen. Weitere Informationen zu Cookies auf dieser Website finden Sie in unserer Datenschutzerklärung und zu uns im Impressum.