Erfahren Sie in diesem Kurs, wie Sie mit LINEAR ein 3D-Heizungsprojekt in AutoCAD erstellen. Angefangen bei der Erstellung der Raumgeometrie, über die Platzierung der Komponenten inklusive Leitungsführung, bis zur Dokumentation der Planung.
Kurs: 3D-Rohrleitungsbau
Inhalt
Einleitung
Raumkonstruktion
2.1 Erstellen der Raumgeometrie
2.2 Das Modul Stahlbau
Platzieren der Komponenten
3.1 Platzieren des Verteilers
3.2 Erstellen und Platzieren eines Behälters
3.3 Platzieren des Heizkessels
Leitungsführung
4.1 Die Leitungsführung
4.2 Absperreinrichtung einbauen
Dokumentation
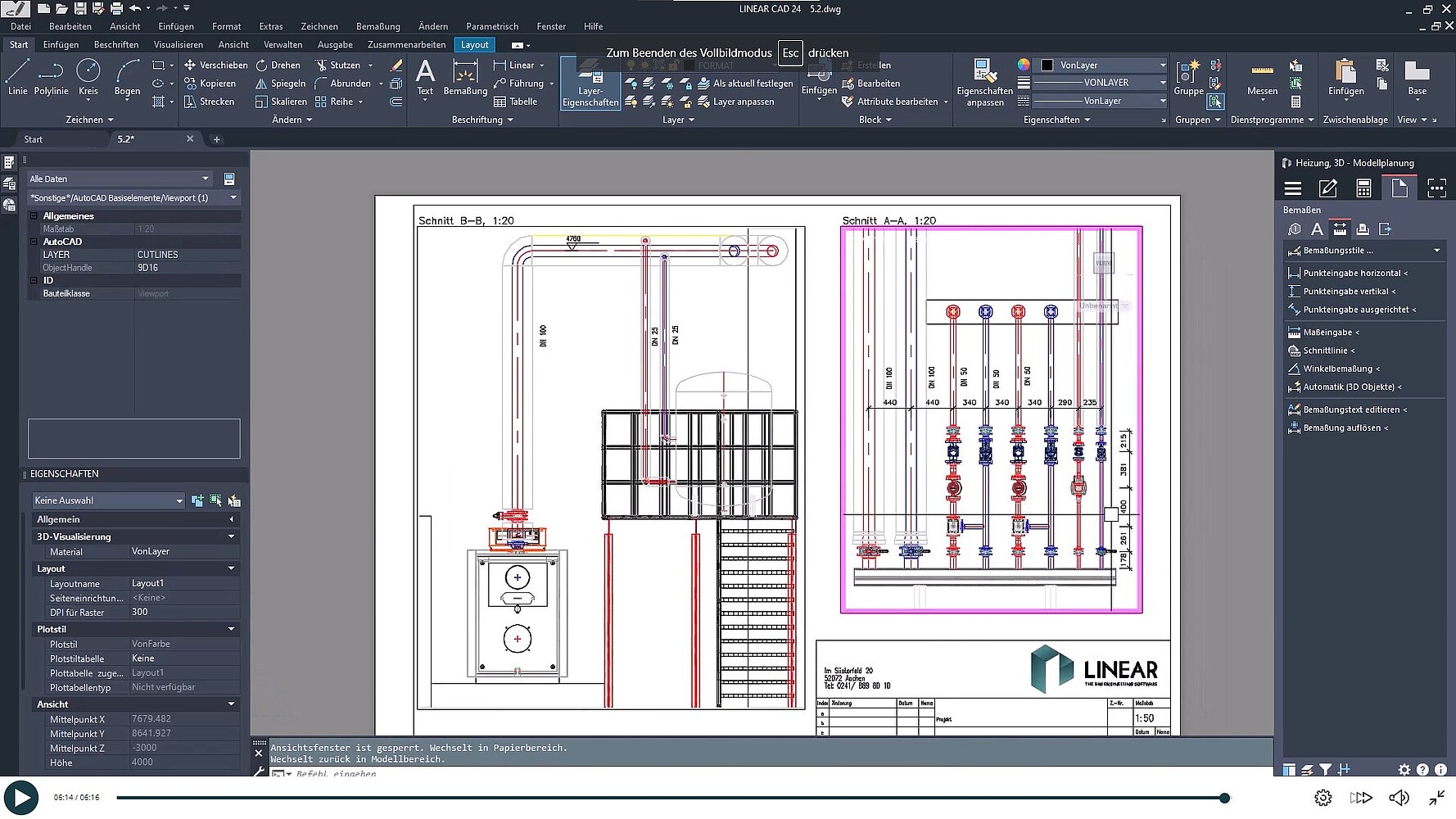
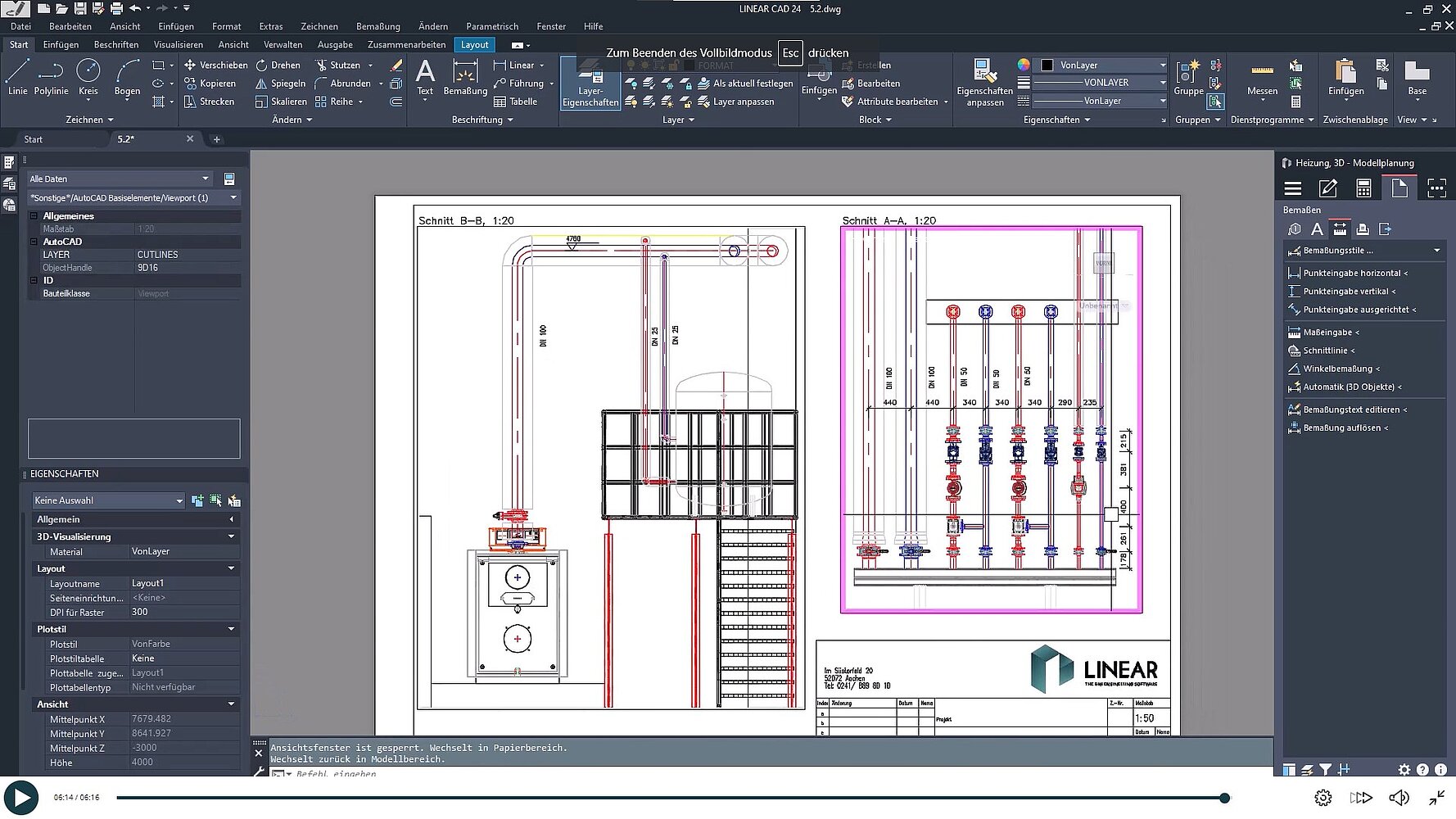
5.1 Schnitte anlegen
5.2 Beschriften
5.3 Ausgabe
Zu Beginn erstellen wir eine Raumgeometrie, in der wir die Heizungsanlage später installieren.
Ebenfalls zeigen wir Ihnen, wie Sie mit unseren Stahlbau-Werkzeugen beispielsweise Treppen erstellen können.
Anschließend konfigurieren und platzieren wir die Komponenten wie den Heizkessel, Verteiler und einen Behälter.
Alle Komponenten werden anschließend verrohrt und angebunden, inklusive aller benötigten Armaturen.
Abschließend erstellen wir die Dokumentation. Neben der Beschriftung zeigen wir Ihnen die Erzeugung von Schnitten und die Ausgabe auf Plänen.
Alle Bauteile finden wir dann auch in der Stück- bzw. der Positionsliste wieder und können diese in verschiedenen Formaten ausgeben.
Das Cookie-Fenster wird durch eine Browser-Erweiterung unterdrückt. Bitte geben Sie die Website frei.
Hinweis zu Cookies
Unsere Webseite verwendet Cookies. Diese haben zwei Funktionen: Zum einen sind sie erforderlich für die grundlegende Funktionalität unserer Website. Zum anderen können wir mit Hilfe der Cookies unsere Inhalte für Sie immer weiter verbessern. Hierzu werden pseudonymisierte Daten von Website-Besuchern gesammelt und ausgewertet. Das Einverständnis in die Verwendung der Cookies können Sie jederzeit widerrufen. Weitere Informationen zu Cookies auf dieser Website finden Sie in unserer Datenschutzerklärung und zu uns im Impressum.