Weiter geht es mit unserer E-Learning-Offensive. Der neue Kurs "Konstruktion Rohrnetz Entwässerung" ist ab sofort auf unserer Plattform verfügbar.
Um ein Entwässerungsrohrnetz zu zeichnen und zu berechnen, muss es zunächst korrekt geplant sein. Dieser Kurs soll die Konstruktion von Rohrleitungen und das Platzieren von unterschiedlichsten Netzkomponenten mit LINEAR vermitteln.
In diesem Kurs zeigen wir Ihnen die Konstruktion eines Abwasserrohrleitungsnetzes sowie eines Regenentwässerungsnetzes. Diese Netze werden wir dann in einem separaten Kurs mit LINEAR AnalyseWaste Water berechnen.
Welche Voraussetzungen müssen während der Konstruktion erfüllt sein? Wie hilft LINEAR CAD Solutions, das Projekt zu verwalten und mit dem Controlboard bestimmte Vorgänge einfacher zu gestalten? Sehen Sie es selbst, in diesem kostenlosen Kurs.
Kursgliederung
Konstruktion Rohrnetz Entwässerung
1. Allgemeines
1.1 Einleitung
2. Bauteile Entwässerung platzieren
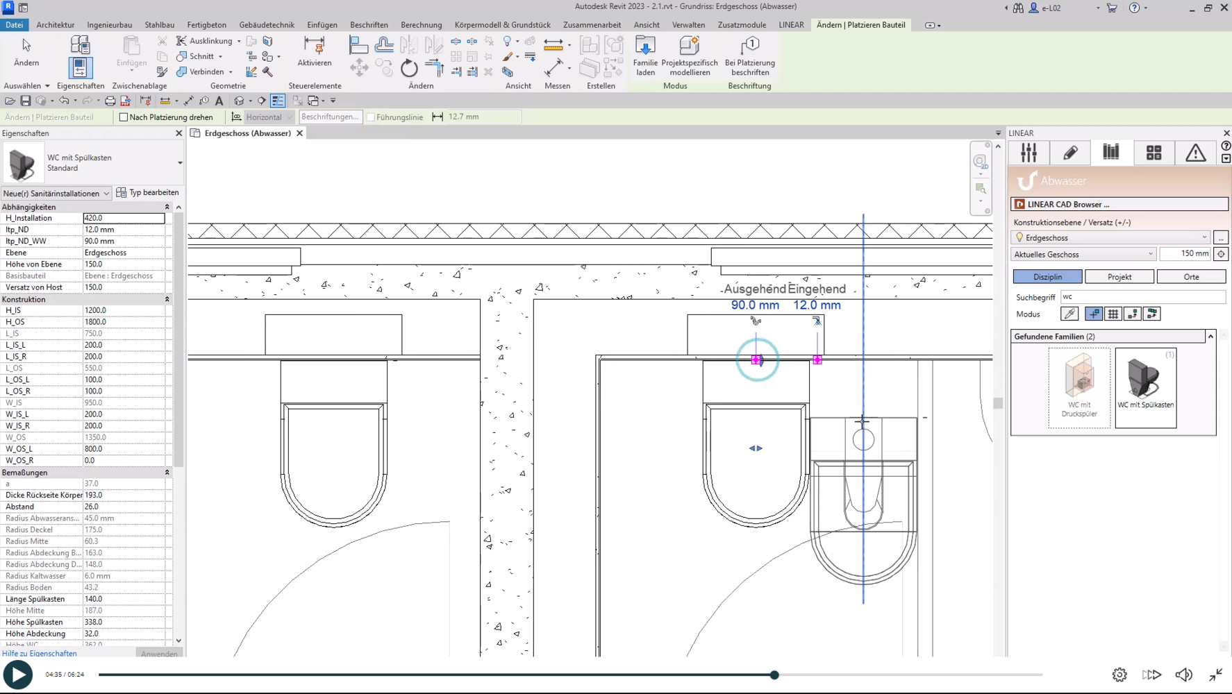
2.1 Bauteile Abwasser platzieren
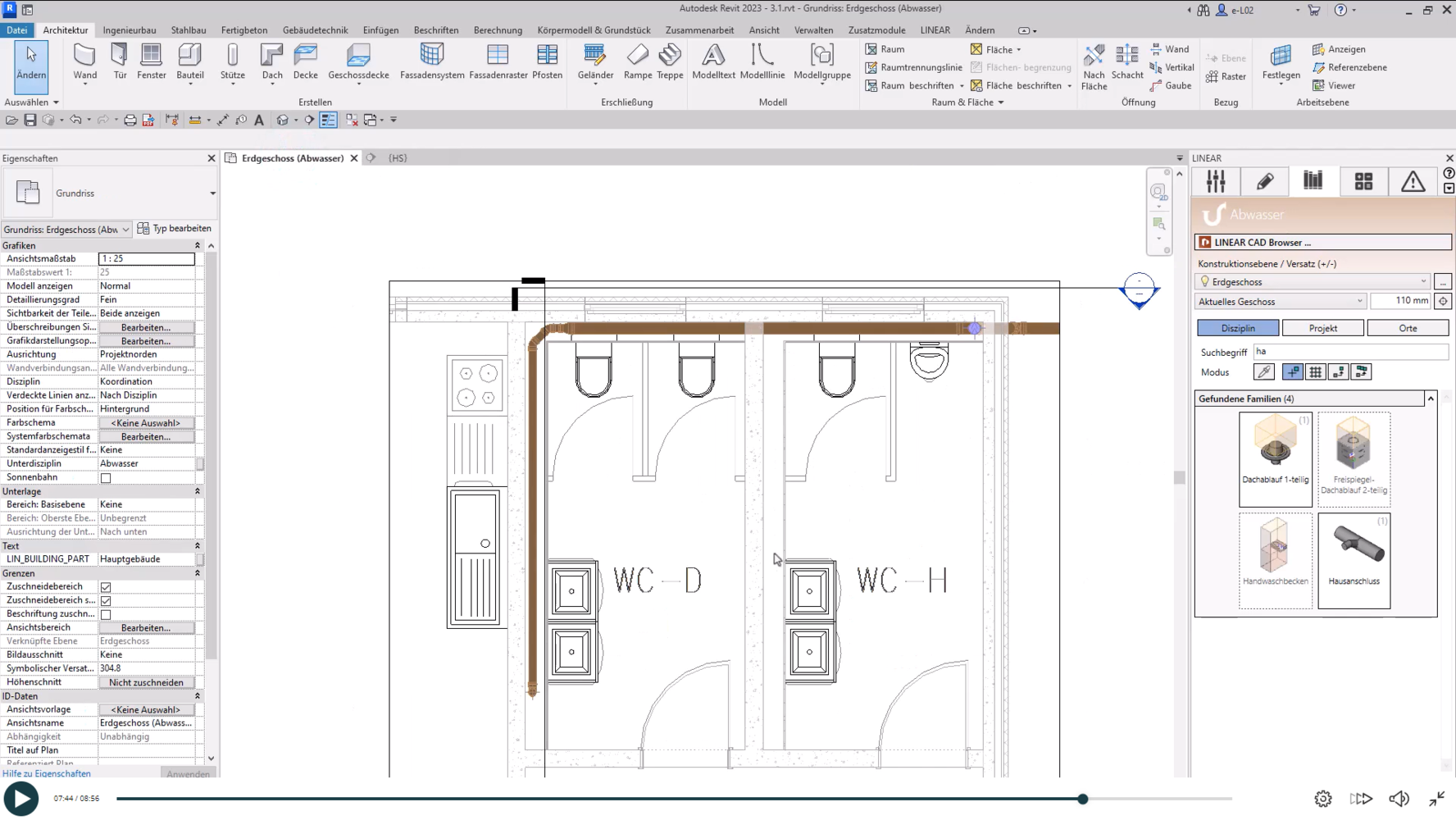
2.2 Bauteile Regenwasser platzieren
3. Leitungen verlegen
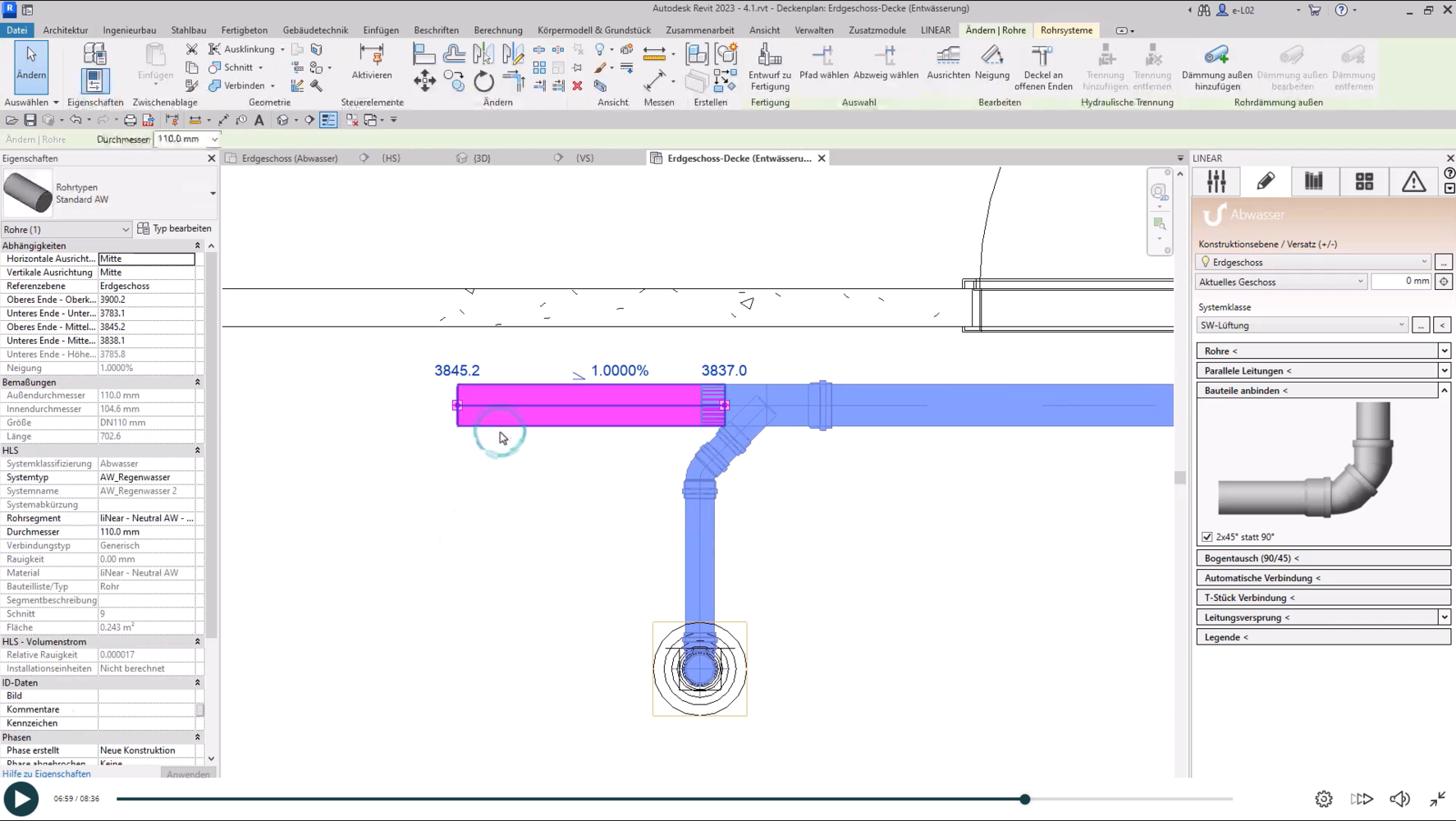
3.1 Abwasserleitungen verlegen
3.2 Regenwasserleitungen verlegen
4. Bauteile anbinden
4.1 Bauteile anbinden
Wir demonstrieren Ihnen die einfache Bauteilplatzierung in der Abwasserkonstruktion.
Anschließend lernen Sie, wie Sie einfach und komfortabel das Abwasserrohrnetz konstruieren.
Im nächsten Schritt werden die Bauteile mit dem Rohrnetz verbunden.
Neben der Abwasserkonstruktion zeigen wir Ihnen auch die Konstruktion im Bereich der Dachentwässerung.
Das Cookie-Fenster wird durch eine Browser-Erweiterung unterdrückt. Bitte geben Sie die Website frei.
Hinweis zu Cookies
Unsere Webseite verwendet Cookies. Diese haben zwei Funktionen: Zum einen sind sie erforderlich für die grundlegende Funktionalität unserer Website. Zum anderen können wir mit Hilfe der Cookies unsere Inhalte für Sie immer weiter verbessern. Hierzu werden pseudonymisierte Daten von Website-Besuchern gesammelt und ausgewertet. Das Einverständnis in die Verwendung der Cookies können Sie jederzeit widerrufen. Weitere Informationen zu Cookies auf dieser Website finden Sie in unserer Datenschutzerklärung und zu uns im Impressum.