Automatic scheme creation in Revit
Discover the innovative "Scheme" workflow for the automated creation of schematics in Revit! With V24, we've fulfilled a long-standing wish of many customers to also implement schematic planning with Autodesk Revit. In doing so, we stay true to our motto "Workflow instead of Workaround" and avoid redundant tasks. We don't just hand you "simple " tools for a manual scheme creation; instead, we've developed an automation that generates a schematic view based on all available model information. All generated elements are directly linked to their counterparts in the model as they're essentially just another view of the same information. With our special functions, you can still make targeted manual adjustments. We're starting with the schematic design for potable water, which surely poses the most significant challenges. More disciplines will follow.
LINEAR Solution with a new look
Discover the completely redesigned UI of the LINEAR solutions for AutoCAD and Revit. The new user interface of the LINEAR Control Board with new, consistent icons for each command integrates seamlessly into the CAD platform and supports you optimally in all work steps.
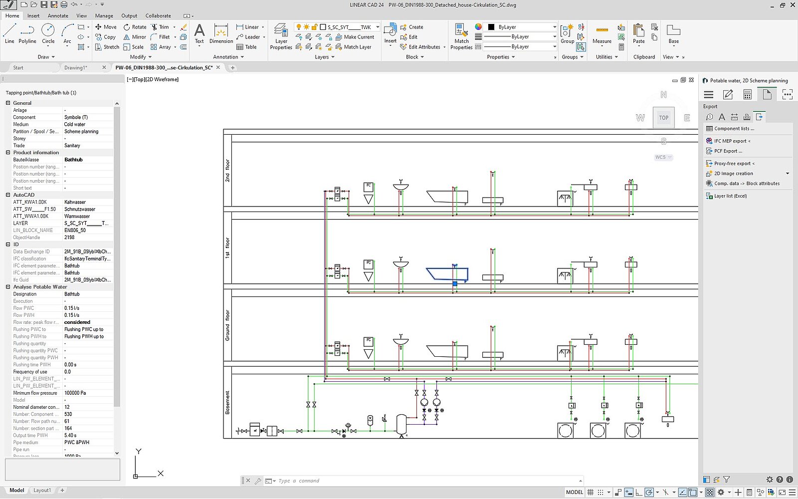
LINEAR properties dialog in AutoCAD
As part of the redesign of the user interface, a new dialog has also been integrated, significantly improving the work with information in AutoCAD. The redesigned LINEAR properties dialog is a real all-rounder: It displays all relevant information in detail – from floors, trades, and layers to the calculation data of the selected objects, and not only acts as a pure output tool but also allows direct value changes. The adjusted parameters are immediately considered in subsequent calculations. The filter function for the same component types is especially useful. This allows you to quickly and easily adjust values for numerous components simultaneously. Experience how the LINEAR properties dialog simplifies and optimizes your workflow in AutoCAD! Maintaining full control over all parameters has never been easier.
Riser symbols in floor plans in Revit
The most requested feature from our LINEAR IDEA Channel makes its way into the software: Now use the new riser symbol function to automatically position appropriate riser symbols on your floor plans at the riser pipes. LINEAR Desktop analyzes the network's topology to always choose the right symbol for each situation. If there are uncertainties, a smart automation kicks in: In this case, an "undefined" symbol is first set and an associated report is generated. You then have full control and can manually select the desired symbol in the Revit properties.
This is just a small selection of the complete V24 feature list! Continue reading now in the What's New.




