What's new

Here you can find all new features of the current version as well as all new features of the last versions! We update the list with the release of the features to the respective update (Feature Pack). You can easily download and install the update to the latest version via the LINEAR Installation Center

Note: Most of the new features are only available for subscription customers. 

For major releases (new version number) you need the corresponding licenses. You can request these as a subscription customer on our contact page.

Request new licences

Filter:

New Room Data Sheet Module for Optimal Room Information Management

LINEAR Solutions V26.0

The new Room Data Sheet module in LINEAR Building marks a decisive step toward BIM-compliant planning. It enables the management of digital, machine-readable room parameters from early design phases – whether a complete CAD building model exists, or the data originates from Excel. The Excel Room Data Sheet synchronization available since version 25.2 has been comprehensively enhanced in version 26.0. The new module can store, display, edit, verify, and calculate virtually any conceivable room parameter. Native LINEAR parameters, user-defined parameters, as well as CAD and Excel imports are all equally supported.

For efficient organization, you can use individually customizable structure configurations: beyond the classic building structure, rooms can be grouped by room type, zones, or other criteria. Data entry takes place in thematically organized property sets that are clearly displayed in tabular form. Intelligent filters, sorting functions, and automatic plausibility checks help immediately identify errors and inconsistencies.

The information collected in the Room Data Sheet module provides a reliable foundation for calculations, such as heating and cooling loads, and is synchronized across all relevant LINEAR planning modules. The Room Data Sheet serves as a central data collection point that can be continuously maintained and used by all project participants.

Benefits at a glance:

  • BIM-compliant management of digital room parameters from CAD or Excel
  • Flexible and individual structure configurations for tailored organization
  • Thematically grouped property sets with filter, sort, and plausibility functions
  • Support for automatic data validation and target/actual comparisons
  • Seamless synchronization and data flow across all design phases and modules
  • Central data repository for collaborative work and efficient project management

Explore more details...

 

Automatic Dimensioning in the Pipe Route Concept

LINEAR Solutions V26.0

The proven Pipe Route Concept has been expanded with a powerful calculation module. This feature enables duct and pipe dimensions to be determined easily, quickly, and precisely using the distribution network topology of the designed pipe routes in early design phases – based on existing space information.

Energy and volume flow data are taken directly from the MEP spaces. This allows designers to record central building data in LINEAR Building at an early stage and automatically transfer it to the MEP spaces:

  • Heating demand → estimated heat loads
  • Cooling demand → cooling loads using simplified methods
  • Outdoor air volume flows → air quantity determination
  • Waste water/potable water consumers → captured via the new Room Data Sheet module

Through feed-in, collection and transfer points – similar to the familiar "network start/end" objects – additional information relevant for dimensioning is assigned to the pipe routes:

  • Definition of generation systems
  • Assignment of system classes
  • Differential Temperature (flow/return)
  • Coverage of defined demands by respective systems
  • Additional boundary conditions for calculation

By combining multiple rooms into supply zones with collection points, main routes can be dimensioned particularly efficiently. The calculated loads are automatically aggregated via the designed pipe routes and appropriately assigned systems in the start and end components and dimensioned section by section. The determined dimensions can then be used directly in the established pipe route concept – from defining cross-sections to automatically generating pre-sized pipes in the model.

Benefits at a glance

  • Greater design reliability through early, precise dimensioning
  • Significantly reduced design effort through automatic calculation
  • Continuous data consistency from demand definition to model generation
  • Efficient, transparent and BIM-compliant design across all disciplines

With this new calculation module, pipe route planning becomes an integral part of the early and preliminary design phases.

Explore more details…

Solutions for Revit

3D Visualization of MEP Space Parameters

LINEAR Solutions V26.0

With the space data visualization, you can clearly display all parameters of your MEP spaces in a 3D view. The function creates colored visualization bodies for your selected space parameters in a temporary view – ideal for quick analysis and evaluation of your design data. This rprovides a clear visualization in all design phases that you can use for a wide variety of purposes: check room sizes, occupancy or room types early on, or quickly and intuitively verify the design temperatures. Continuous parameters such as temperatures or volume flows are visualized using customizable color gradients, while discrete parameters like room types or usage categories are automatically color-coded. Once the visualization meets your requirements, you can save the temporary view and convert it into a permanent Revit view that you can use anytime for plans or presentations.

Benefits at a glance

  • Fast analysis through temporary 3D views with color-coded space parameters and automatic legends
  • Flexible visualization of continuous and discrete data with individual color schemes
  • Applicable in all design phases – from early space planning to final design verification
  • Saving of reusable views for professional documentation and presentations

This innovative visualization tool makes complex space data instantly understandable and gives you full control over your analysis views at every project stage.

Explore more details…

Solutions for Revit
Customer request

Neutral Bills of Quantities at the Touch of a Button – Effortless Removal of Manufacturer Data and Editable Short Texts

LINEAR Solutions V26.0

Would you like to run calculations with manufacturer components while generating a completely neutral bill of quantities? With the "Output Manufacturer-Neutral Material" option, this is now conveniently possible. All manufacturer-related information is automatically removed from the bill of quantities. This is ideal for open tenders or project-wide material reporting.

Additionally, you can now customize all short texts individually – including those imported from the CAD Browser or user-defined components. This lets you flexibly add project-specific details and tailor the output to your exact needs.

Benefits at a glance

  • Manufacturer-neutral bill of quantities with one click
  • Fully customizable short texts for complete control
  • Flexibly add extra information at any time
  • Greater transparency for tendering, procurement, and documentation
Solutions for AutoCAD / CADinside
Solutions for Revit

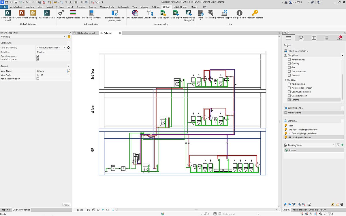
Scheme Editor: Intelligent Editing with Full Model Integrity

LINEAR Solutions V26.0

The Scheme Editor revolutionizes scheme editing: work directly on your schemes – whether derived from Revit models or transferred from LINEAR Building – without losing component connections. Moving elements automatically updates pipes and embedded components. No more manual adjustments, no broken connections. With intelligent layout functions such as repositioning, flipping, alignment, you can adapt your schemes to new requirements in seconds, not hours. All changes are reliably written back to the drawing view. Your scheme remains consistent and efficient.

Benefits at a glance

  • Automatic connection updates – no manual adjustements needed
  • Intelligent layout tools for fast and flexible adjustments
  • Full model integrity from schematic to drawing view
  • Seamless integration with Revit – bidirectional linking

Explore more details…

Solutions for Revit
Customer request

New and Revised Ventilation Families – 20 New Components and Intelligent Improvements

LINEAR Solutions V26.0

Based on numerous requests from the LINEAR Idea Channel, the ventilation families have been extensively expanded and revised. With version 26.0, you now have 20 new components at your disposal – all fully parametric. Depending on the component type, you can flexibly define socket heights, angles, or number of lamella to precisely adapt components to your requirements.

The new families include:

  • Intake bends
  • Exhaust bends
  • Double intake bends
  • Double exhaust bends
  • Fresh air hoods
  • Deflector hoods
  • Lamellar hoods
  • Horizontal rain separator
  • Roof penetrations for flat and pitched roofs (insulated and non-insulated)

Most are available for rectangular and round ducts.

Additionally, existing components have been intelligently revised: symbols are now recognizable in 3D views on components – volume flow controllers, filters, and dampers are instantly recognizable instead of appearing as undefined boxes. Motor positions can be adjusted via checkboxes without rotating the component manually.

The revised T-piece connection automatically suggests practical connections when different dimensions meet. With the new, flexibly configurable sleeves and nipple families, production-ready connections are created.

Benefits at a glance

  • 20 new, fully parametric components for maximum flexibility
  • Components instantly recognizable in 3D views via symbols
  • Intelligent auto-connections with adaptable reducer suggestions
Solutions for Revit
Customer request

Updating Fixings for Changed Positions of Pipes and Ducts

LINEAR Solutions V26.0

In dynamic construction processes, it often happens - even in late design phases - that pipes or ducts need to be repositioned. To keep your design consistent at all times, version 26.0 comes with a new function for updating fixings. Fixings are automatically adjusted to the changed position of the associated pipes or ducts – keeping your models up to date, avoiding inconsistencies and significantly reducing rework.

Benefits at a glance

  • Considerable time savings during design changes
  • Automatic adjustment of fixings when pipe or duct positions change
  • Consistent models without manual rework
  • Significantly reduced error rate through automated updating

This intelligent automation ensures cintinuously up-to-date installation planning and gives you greater confidence when implementing short-notice project adjustments.

Solutions for Revit
Customer request

Fixings for Linked MEP Models

LINEAR Solutions V26.0

With version 26.0, a frequently requested customer request from the LINEAR Idea Channel becomes reality: fixings can now be placed in linked MEP models. You organize your projects in separated discipline-specific models and want to display fixings in a separate model? From now on, you decide whether the ducts and pipes to be mounted are in a linked file or integrated in the same model. This flexibility seamlessly adapts to your individual workflow and enables more precise construction design.

Benefits at a glance

  • Fixings are now also available in linked models
  • Free choice of model structure according to your project requirements
  • Optimized collaboration in discipline-separated design processes
  • Precise construction design across model boundaries

This highly requested function expands your design freedom and supports better modern, collaborative BIM workflows. Have ideas for new features yourself? Share them via the LINEAR Idea Channel and let other users vote!

Solutions for Revit
Customer request

Automatic Creation of Schemes - Extended for Cooling

LINEAR Solutions V26.0

With version 26.0, automatic scheme generation is extended to include the discipline cooling. You can create detailed cooling schemes directly from your 3D model with appropriate symbols and complete links to all components. Your 3D model remains the central source of information, while you can make targeted manual adjustments whenever needed.

Benefits at a glance

  • Automatic scheme generation for cooling systems directly from the 3D model
  • Consistent symbols and complete links to model elements
  • Unified workflow for heating, potable water and cooling systems
  • Flexible manual editing options available whenever needed
Solutions for Revit
Customer request

Transfer Manufacturer Data from the CAD Browser to Neutral Components

LINEAR Solutions V26.0

A frequent request from the Idea Channel: use manufacturer data without replacing the existing component in the model. As of version 26.0, this is now possible. The new function allows you to transfer relevant manufacturer data from the CAD Browser directly to components already placed in your model – without exchanging geometry.

This allows you to work with real manufacturer values for more precise calculations and realistic designs, while your model remains neutral and flexible. This is particularly valuable when you initially plan with generic components and later enrich them with specific product data – without fundamentally changing the model. Your design freedom remains fully preserved, while data quality is significantly enhanced.

Benefits at a glance

  • Transfer manufacturer data from the CAD Browser to existing components – without component exchange
  • Model remains neutral and flexible, but with real manufacturer data
  • More precise calculations through high-quality product data
  • No model changes necessary – maximum design freedom
Solutions for AutoCAD / CADinside
Solutions for Revit
Customer request

Simple Height Adjustment of Components via LINEAR Properties

LINEAR Solutions V26.0

With the immense simplification of height adjustments for components and component groups, we are fulfilling another customer request from the LINEAR Idea Channel. New height parameters enable you to comfortably move individual components or entire component groups vertically through direct input. Whether you want to adjust a component within a storey or move it to another storey – both stepsare now achieved directly and intuitively via the LINEAR properties.

Benefits at a glance

  • Direct height input for single components or entire component groups
  • Adjustement across storeys without manual repositioning
  • Significant time savings during model adjustments and design changes
Solutions for AutoCAD / CADinside

Improved Filter Function in the CAD Browser – Faster Product Selection

LINEAR Solutions V26.0

The filter function in the LINEAR CAD Browser, introduced in version 25, has been significantly expanded and optimized in version 26.0. Product selection is now even faster, more convenient, and more targeted – especially with large manufacturer catalogs and complex search queries.

Three key improvements make the difference: The cross-manufacturer product selection automatically combines various filter properties and narrows the display across all available manufacturers – so you can effortlessly find components that exactly match your requirements. The new interactive breadcrumb navigation above the product list allows you to easily switch between hierarchy levels and jump directly to specific categories. And finally, you can now save and reuse your filters: Temporarily saved filters can be stored as favorites – ideal for frequently used search queries.

Benefits at a glance:

  • Cross-manufacturer product filtering for precise search results
  • Interactive breadcrumb navigation for quick switching between hierarchy levels
  • Significantly faster and more efficient component selection in large catalogs

Explore more details...

Solutions for AutoCAD / CADinside
Solutions for Revit