E-learningcursus over het nieuwe schematische ontwerp in Revit
Versie 24 introduceert het nieuwe schematisch ontwerpen voor Revit. Om direct aan de slag te kunnen, is er nu ook een passende e-learning cursus beschikbaar waarin je leert hoe je een schema kunt afleiden uit een 3D model.
Cursus: Schemaontwerp in Revit
Inhoud van de cursus
Algemene informatie
Het schema afleiden en maken
Instellingen
Het schema afleiden
Aanpassingen
Etikettering
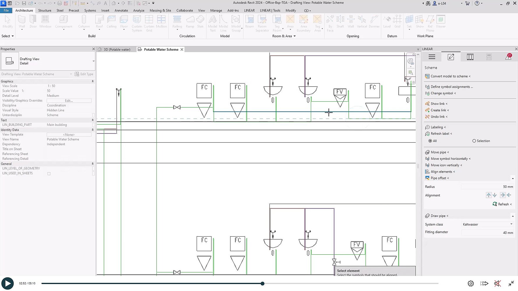
We zullen eerst laten zien hoe het model ideaal gestructureerd is om een perfect schema te maken. Vooral de etagetabel helpt om de afleiding van het schema op een ideale manier voor te bereiden.
Je kunt dan enkele specificaties definiëren voor het maken van het schema voordat de conversie begint.
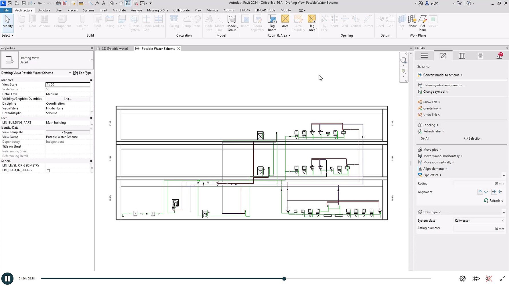
Vervolgens kun je op basis van je 3D-model ...
... zet het gewoon om in een schema.
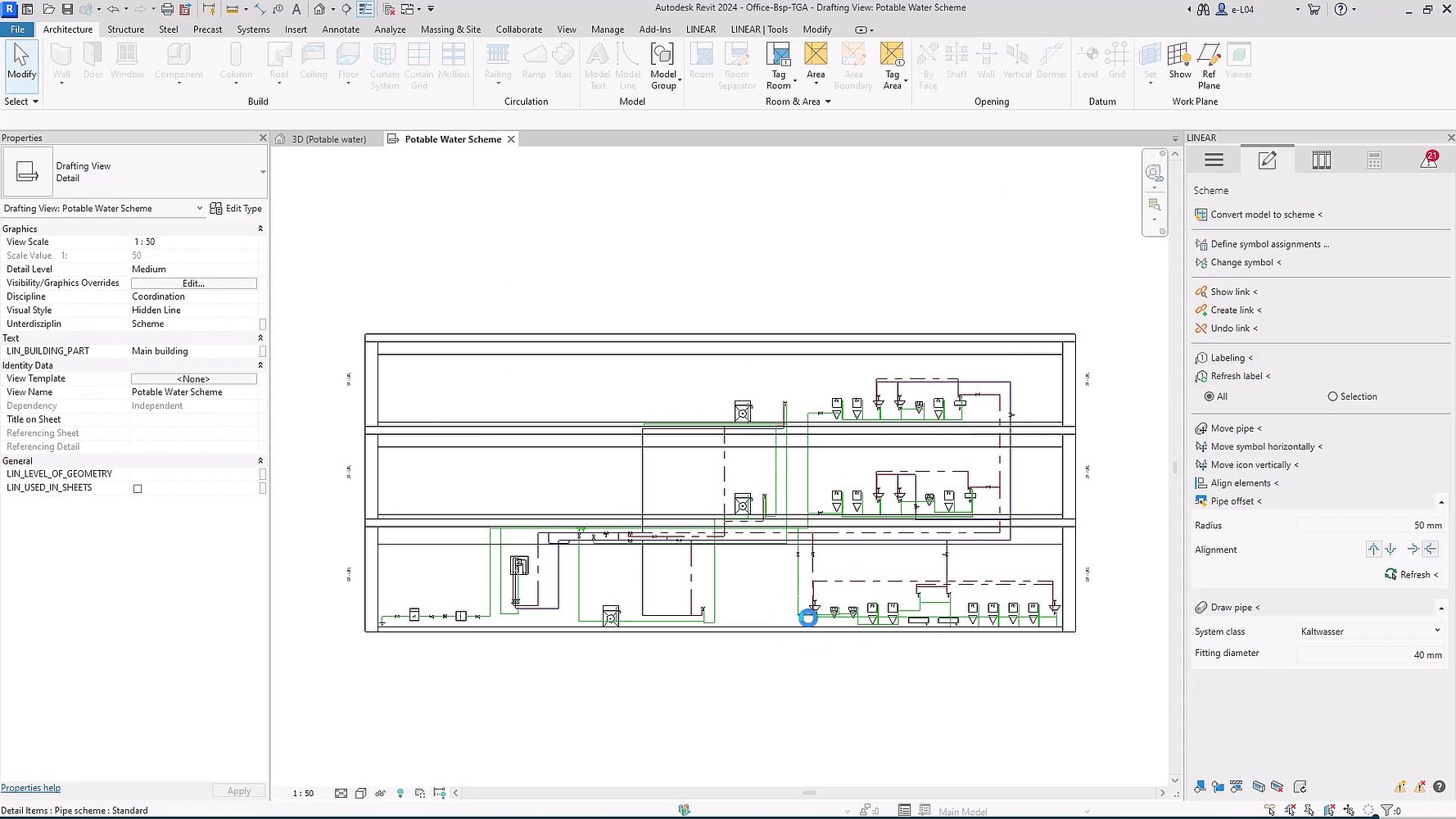
We laten je ook zien hoe je aanpassingen kunt maken. Je kunt bijvoorbeeld de gewenste symbolen globaal of voor afzonderlijke onderdelen definiëren.
Je kunt ook de leidingen aanpassen om de weergave te optimaliseren.
Optioneel kun je ook de weergave van de individuele leidingen aanpassen.
Tot slot laten we je zowel de automatische als de handmatige etikettering van je schema zien.
The cookie window is suppressed by a browser extension. Please unblock the website.
About Cookies
This website uses cookies. Those have two functions: On the one hand they are providing basic functionality for this website. On the other hand they allow us to improve our content for you by saving and analyzing anonymized user data. You can redraw your consent to using these cookies at any time. Find more information regarding cookies on our Data Protection Declaration and regarding us on the Imprint.