New course on the common features of all calculation modules
In diesem Kurs zeigen wir Ihnen die Gemeinsamkeiten der Berechnungsmodule der verschiedenen Disziplinen. Anhand von Beispielprojekten wird veranschaulicht, welche Möglichkeiten Sie bezüglich einer Beschriftung haben, wie sich die Ausgabe von Daten gestaltet, wie die Auswahl von Objekten zur Erfassung eines Netzes geregelt ist und wie technische Daten angepasst werden können.
Course: Common Features of All Calculation Modules
Content
About the Course Common Features of All Calculation Modules
1.1 General Information
Similarities in the Control Board
2.1 Settings
2.2 Labeling
2.3 Output
2.4 Classifying components / Copying technical data
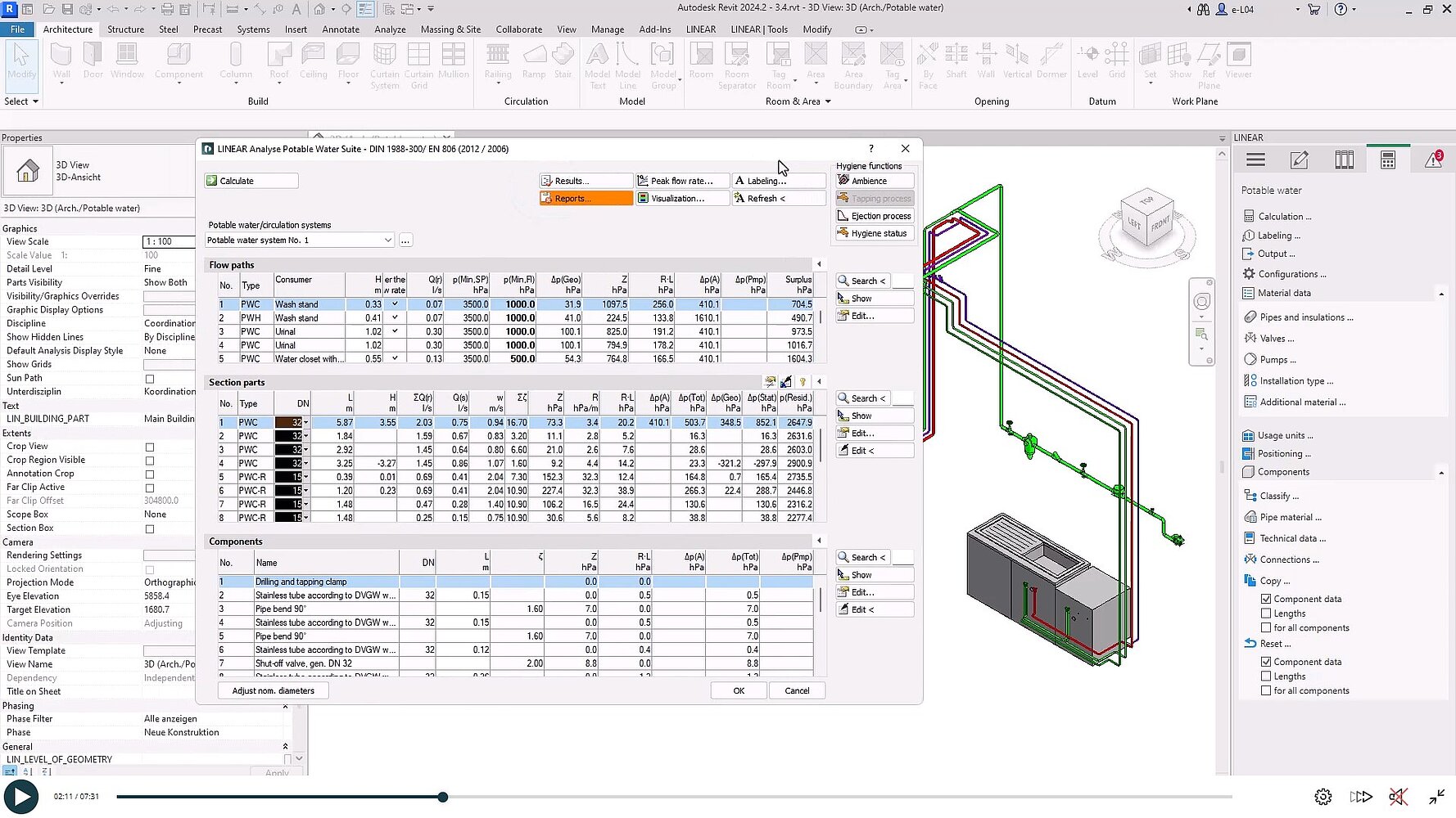
Similarities in the Calculation Dialog
3.1 The User Interface
3.2 The Reports
3.3 Visualization
3.4 Adjust Nominal diameter
First, we will go into the LINEAR Control Board and show you the similarities within the calculations. This includes, in particular, the settings, labeling, output, classification of components and adaptation of technical data.
We then look at the calculation dialog and explain all the points that are identical in handling across all disciplines. This includes the basic UI as well as the reports, the visualization and the adjustment of nominal diameter.
The cookie window is suppressed by a browser extension. Please unblock the website.
About Cookies
This website uses cookies. Those have two functions: On the one hand they are providing basic functionality for this website. On the other hand they allow us to improve our content for you by saving and analyzing anonymized user data. You can redraw your consent to using these cookies at any time. Find more information regarding cookies on our Data Protection Declaration and regarding us on the Imprint.