Status van de normen
In september 2017 is de normenreeks DIN EN 12831 "Energieprestaties van gebouwen - Methode voor de berekening van de standaard verwarmingsbelasting" gewijzigd. Daarbij werd de berekening van de verwarmingsbelasting voor drinkwaterverwarmingssystemen in de normenreeks geïntegreerd. DIN EN 12831 regelt de berekening van de ruimteverwarmingsbelasting in deel 1. Deel 3 beschrijft de bepaling van de vraag naar drinkwaterverwarmingssystemen en hun verwarmingsbelasting. Deel 1 vervangt DIN EN 12831 uit 2003 en deel 3 vervangt DIN EN 15316-3-1 uit 2007. Net als de oude norm kan de berekening van de ruimteverwarmingsbelasting volgens DIN EN 12831-1 niet worden uitgevoerd zonder een nationale aanvulling. Daarom werd het ontwerp van de nationale aanvulling in oktober 2018 gepubliceerd als DIN SPEC 12831-1. DIN SPEC 12831-1 moet de aanvullende bladen van de oude verwarmingslastberekening vervangen. In een persbericht van DIN1 van november 2017 beveelt de normcommissie aan om de beschikbare aanvullende bladen met verwijzing naar DIN EN 12831-2003 te blijven gebruiken totdat de definitieve versie van DIN SPEC 12831-1 is gepubliceerd. De bezwaarperiode voor DIN SPEC 12831-1 eindigde in januari 2019, dus de definitieve versie zal naar verwachting niet voor de zomer worden gepubliceerd.
Met andere woorden, dit betekent dat de nieuwe norm voor verwarmingsbelasting op zijn vroegst in de zomer van 2019 zal worden gebruikt en dat men tot die tijd moet rekenen volgens de bestaande procedures.
Basisprincipes
Volgens DIN EN 12831-1 wordt de standaard verwarmingsbelasting gedefinieerd als de warmtestroom die nodig is om de standaard binnentemperatuur te bereiken onder standaard buitencondities. Onder deze definitie kan de standaard verwarmingsbelasting alleen worden begrepen als de belasting voor ruimteverwarming zonder de verwarmingsbelasting van drinkwaterverwarmingssystemen. Omdat de naam van de normserie DIN EN 12831 "Energieprestatie van gebouwen - Methode voor de berekening van de standaard verwarmingsbelasting" is en deel 1 de verwarmingsbelasting van de ruimte beschrijft en deel 3 de verwarmingsbelasting van huishoudelijke warmwatersystemen, is de definitie van de standaard verwarmingsbelasting onvolledig of misleidend. Aangezien dit artikel uitsluitend deel 1 van DIN EN 12831 behandelt, wordt de term verwarmingsbelasting in dit artikel gebruikt voor de verwarmingsbelasting zonder warmwaterbereiding.
De berekening van de verwarmingsbelasting is een stationaire procedure - dit betekent dat de randvoorwaarden constant zijn in de tijd en dat er wordt uitgegaan van een thermisch stabiele toestand van de gebouwcomponenten. De berekening van de verwarmingsbelasting verschilt dus aanzienlijk van de berekening van de koelbelasting volgens VDI 2078, die werkt met een dynamische benadering. Voor de berekening van de verwarmingsbelasting worden ontwerpvoorwaarden gespecificeerd die een extreme situatie beschrijven, die slechts in de zeldzaamste gevallen wordt bereikt. Als gevolg hiervan werkt het verwarmingssysteem dat is gedimensioneerd met de resultaten van de verwarmingslastberekeningen bijna uitsluitend in deellast. De verwarmingsbelasting is daarom niet geschikt voor het schatten van de energievraag, maar alleen voor het dimensioneren van verwarmingssystemen.
Voor de dimensionering kunnen verwarmingssystemen worden onderverdeeld in drie gebieden:
- Warmteafgiftesystemen
- Warmteopwekkers
- Warmtedistributiesystemen
De warmteverdeelsystemen omvatten voornamelijk radiatoren en paneelverwarmingssystemen. Als ventilatie-eenheden met luchtbehandeling worden opgenomen in het gebouwontwerp, kunnen de luchtverwarmers van de eenheden een deel van de verwarmingsbelasting dekken en maken dan ook deel uit van de warmteafgiftesystemen. Ketels en warmteoverdrachtstations, bijvoorbeeld een stadsverwarmingsaansluiting, tellen mee als warmteopwekkers. Het leidingsysteem met de geïnstalleerde onderdelen, zoals pompen en kleppen, behoort tot de warmtedistributiesystemen.
Gebouwunit en ventilatiezone
De nieuwe DIN EN 12831-1 introduceert de termen gebouwunit en ventilatiezone.
Een gebouwunit is een deel van een gebouw dat gewoonlijk door één partij wordt gebruikt en waarin de warmtetoevoer individueel kan worden geregeld door de gebruiker. De gebouwunit beschrijft dus huur- en eigendomsverhoudingen binnen een gebouw, waarbij de betreffende partij geen invloed heeft op de temperatuur van de andere gebouwunits. Als ruimtes gezamenlijk door meerdere partijen worden gebruikt, behoren ze niet tot een gebouwunit. In een flatgebouw is elke flat dus een gebouwunit en behoort het trappenhuis tot geen enkele gebouwunit.
Een ventilatiezone bestaat uit ruimten die door hun ontwerp een directe of indirecte luchtverbinding hebben. Uit de definitie kan worden afgeleid dat er door het ontwerp geen luchtuitwisseling is tussen ventilatiezones en dat een ruimte daarom geen deel kan uitmaken van twee ventilatiezones. Bovendien vereist de berekening van de verwarmingsbelasting volgens deze definitie een ventilatieconcept voor het gebouw. Een ventilatiezone hoeft niet overeen te komen met een gebouwunit. Afhankelijk van de toepassing kan een gebouwunit uit meerdere ventilatiezones bestaan of kan een ventilatiezone uit meerdere gebouwunits bestaan.
In een flatgebouw waar elke flat wordt gevoed via zijn eigen flatventilatie-eenheid, zijn de gebouwunits en ventilatiezones identiek. Als de afvoerlucht echter centraal via het trappenhuis wordt afgevoerd, heeft het gebouw meerdere gebouwunits maar slechts één ventilatiezone. Dit is anders in een industrieel gebouw, waar geen luchtuitwisseling is gepland tussen de kantoren, de productie en de kantine en deze gebieden worden bediend met onafhankelijke ventilatiesystemen; hier heeft het gebouw één gebouwunit en drie ventilatiezones.
Nieuwe klimaatgegevens
Met DIN SPEC 12831-1 zijn de referentielocaties en hun klimaatgegevens herzien. Met de nieuwe norm wordt elk Duits postcodegebied een referentielocatie met klimaatgegevens. Door deze procedure is het aantal referentielocaties gestegen van 524 naar 8.199. Bovendien zijn de standaard buitentemperaturen en de gemiddelde jaartemperaturen aangepast en worden ze nu met één decimaal weergegeven. In de meeste gevallen zijn de standaard buitentemperaturen hoger dan de waarde voor de oude verwarmingslastberekening (zie Tabel 1). Het grotere aantal referentielocaties resulteert in hogere standaard buitentemperaturen voor stadscentra dan voor de buitenwijken en de omliggende gebieden. Dit effect wordt geïllustreerd in figuur 1 voor Düsseldorf.
Voorbeeldgebouw
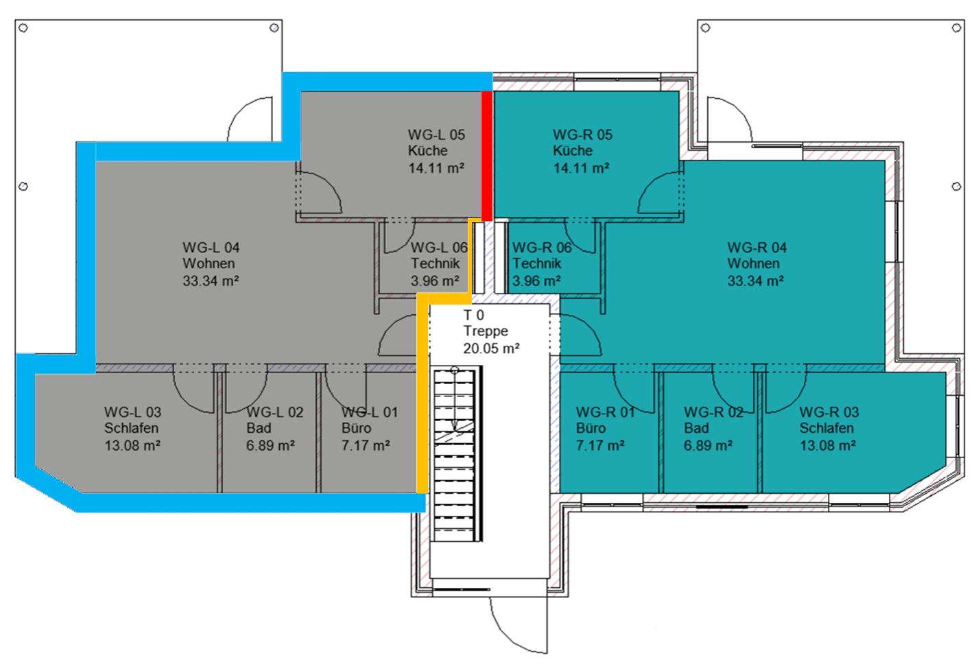
De berekening van de ruimteverwarmingsbelasting moet worden geïllustreerd aan de hand van een klein voorbeeldgebouw met de locatie Aken (postcode 52072). De DIN SPEC resulteert in een standaard buitentemperatuur van -8,6 °C en een gemiddelde jaartemperatuur van 10,5 °C voor de locatie Aken. Figuur 2 toont een aanzicht van het gebouw. Het gebouw is een meergezinswoning met vier appartementen van elk 78 m², verdeeld over twee verdiepingen. Een onverwarmde kelder maakt ook deel uit van het gebouw en het trappenhuis wordt ook als onverwarmd beschouwd. Elke flat is uitgerust met een gecontroleerd ventilatiesysteem voor de woonruimte en het ventilatieconcept is ontworpen volgens DIN 1946-6. Figuur 3 toont de plattegrond van de begane grond en de volumestromen van het ventilatieconcept voor één flat. De gebruiksverhoudingen laten zien dat elk van de vier appartementen overeenkomt met een gebouwunit, die ook een ventilatiezone is. Kelderruimten en trappenhuizen zijn niet toegewezen aan een gebouwunit.

Verwarmingsbelasting van de ruimte
De verwarmingsbelasting volgens DIN EN 12831-1 kan worden berekend voor het gebouw, de gebouwunits en de kamers. In het algemeen wordt de verwarmingsbelasting bepaald uit de transmissiewarmteverliezen, de ventilatiewarmteverliezen, de extra verwarmingscapaciteiten en de warmtewinsten:

De extra verwarmingscapaciteit kan nodig zijn als een onderbroken verwarmingsperiode is gepland en de standaard binnentemperatuur binnen een bepaalde tijd weer moet worden bereikt. In veel gevallen kan de extra verwarmingscapaciteit achterwege blijven als het regelsysteem een temperatuurterugval op de koudste dagen voorkomt of als de warmteverliezen tijdens de terugval te verwaarlozen zijn. De nationale aanvulling voor Duitsland met DIN SPEC 12831-1 specificeert daarentegen dat er geen rekening mag worden gehouden met warmtewinsten van mensen, machines of zonnestraling. Voor Duitsland wordt de verwarmingsbelasting daarom meestal als volgt berekend:



Transmissiewarmteverliezen
De berekeningsmethode voor transmissiewarmteverliezen is niet veranderd ten opzichte van de vorige DIN EN 12831. Ze worden nog steeds berekend op basis van de warmteoverdrachtscoëfficiënten (TTC) van de verwarmde ruimtes en het temperatuurverschil tussen de standaard binnentemperatuur en de standaard buitentemperatuur. Door de definitie van de gebouwunit is er één type warmtedoorgangscoëfficiënt toegevoegd, wat resulteert in vijf typen warmtedoorgangscoëfficiënten, afhankelijk van waar het warmteverlies effectief is:
- Direct naar buiten HT,ie
- Naar aangrenzende ruimtes HT,ia
- Door onverwarmde ruimtes HT,iae
- Naar aangrenzende gebouwunits HT,iaBE
- Naar de grond HT,ig
Bij het berekenen van de transmissieverliezen van een ruimte worden alle vijf warmteverliescoëfficiënten meegenomen. Bij het balanceren van de gebouwunit zijn de warmteverliezen naar aangrenzende ruimtes alleen effectief binnen een gebouwunit, daarom worden de warmteverliezen naar aangrenzende ruimtes weggelaten. Op gebouwniveau wordt geen rekening gehouden met de extra warmteverliezen van de gebouwunits. Voor de kamers, de gebouwunits en het gebouw zijn de berekeningsformules voor de transmissieverliezen als volgt:
De standaard binnentemperaturen zijn ongewijzigd gebleven. In de berekening wordt bijvoorbeeld nog steeds 20 °C voor woonkamers en 24 °C voor badkamers gebruikt. De standaard buitentemperatuur volgt uit de klimaatgegevens van de referentielocatie en kan worden aangepast door middel van een hoogtecorrectie of door rekening te houden met de tijdconstanten van het gebouw. De hoogtecorrectie moet worden uitgevoerd vanaf een verschil van 200 m tussen de hoogte van de bouwlocatie (grondoppervlak) en de hoogte van de referentielocatie. De hoogte van de referentielocatie wordt gespecificeerd in de klimaatgegevens. Het in aanmerking nemen van de invloed van de tijdconstante van het gebouw is optioneel. De tijdconstante van het gebouw beschrijft hoe lang een gebouw nodig heeft om af te koelen en wordt ook gebruikt voor de berekening van de extra verwarmingscapaciteit. Als rekening moet worden gehouden met de invloed van de tijdconstante, wordt de standaard buitentemperatuur verhoogd. De verhoging is beperkt tot 4 °C.
Bij de berekening van de WÜK zijn alleen details veranderd ten opzichte van de oude verwarmingslastberekening. De temperatuurverlagingsfactoren van de oude verwarmingsbelasting(bu, ƒg2 of ƒij ) zijn vervangen door de temperatuuraanpassingsfactor ƒix,k. Deze factor omvat nog steeds de aanpassing als gevolg van de temperatuur aan de andere kant van het gebouwonderdeel en breidt dit uit met een correctie voor ruimten met een hoogte van meer dan vier meter. Voor de WÜK tot de grond wordt rekening gehouden met de invloed van grondwater vanaf een afstand van 1 m tot de vloerplaat (voorheen 3 m). Daarnaast is de vereenvoudigde procedure voor het berekenen van de equivalente warmteoverdrachtscoëfficiënt herzien. Als gevolg hiervan zijn de toepassingslimieten licht gewijzigd.

Temperatuur van de aangrenzende gebouwunit
Uit de definitie van de gebouwunit volgt dat de gebruiker geen invloed heeft op de temperatuur van de aangrenzende gebouwunit. Hier is de berekening van de verwarmingsbelasting gebaseerd op de conservatieve aanname en wordt de aangrenzende gebouwunit als onverwarmd beschouwd. Voor de berekening van de nieuw ingevoerde warmtelast: aangrenzende gebouwunits is een onafhankelijk berekeningsproces nodig, aan het begin waarvan de temperatuur van de aangrenzende gebouwunit in onverwarmde toestand wordt bepaald. Zowel de DIN EN als de DIN SPEC beschrijven hiervoor dezelfde procedure op basis van een stationaire warmtebalans. De procedure berekent de temperatuur in onverwarmde toestand op basis van de CO van de aangrenzende bouwelementen en de temperaturen van de aangrenzende gebieden, evenals een minimumtemperatuur van het aangrenzende bouwelement als gevolg van temperatuurregelings- of vorstbeveiligingsinrichtingen:



De temperaturen van de aangrenzende ruimtes komen uit tabel 2. De minimumtemperatuur beperkt de temperatuur van de onverwarmde gebouwunit naar beneden. In de regel hebben verwarmingssystemen een vorstbeveiligingsfunctie die voorkomt dat de ruimten te veel afkoelen. In de berekening wordt de standaardwaarde van 5 °C gebruikt als minimumtemperatuur als de minimumtemperatuur van de vorstbeveiliging onbekend is. De DIN SPEC staat ook toe om hogere minimumtemperaturen te definiëren als de temperatuurregeling een standaardwaarde heeft waaraan deze moet voldoen.
Figuur 4 toont de aangrenzende temperaturen van het voorbeeldgebouw voor de begane grond-linker gebouwunit.
- De buitenmuren grenzen aan de buitenlucht en de aangrenzende temperatuur is de standaard buitentemperatuur (hier θj= -8,6 °C).
- Het trappenhuis en de kelder zijn onverwarmd volgens plan. Voor deze geveloppervlakken is de aangrenzende temperatuur de gemiddelde jaartemperatuur (hier θj= 10,5 °C).
- De binnenwand van de keuken en het plafond van de verdieping grenzen aan regelmatig gebruikte ruimten en de standaard binnentemperatuur van de aangrenzende ruimten wordt gebruikt (hier θj= 20 °C).
Ervan uitgaande dat de minimumtemperatuur van de vorstbeveiliging niet bekend is(θu,min = 5 °C), is de temperatuur in onverwarmde toestand voor de getoonde gebouwunit θu=10,3 °C. Dezelfde temperatuur resulteert voor de tweede gebouwunit op de begane grond. Door het dak is het gebied dat direct grenst aan de buitenruimte groter voor de gebouwunits op de bovenste verdieping. De temperatuur in onverwarmde toestand is daarom lager en bedraagt 7,1 °C.
Om dergelijke temperaturen in de gebouwunit in het echte gebouw te bereiken, moet de verwarming in de betreffende gebouwunit gedurende meerdere dagen worden uitgeschakeld bij standaard buitentemperaturen (stationaire aanpak). De berekende verwarmingsbelastingen van de kamers zullen toenemen ten opzichte van de oude berekening van de verwarmingsbelasting door rekening te houden met de onverwarmde naburige gebouwunit. Aangezien de gebruikers van de andere gebouwunits echter geen invloed hebben op de temperatuurregeling van de naburige gebouwunit, is de aanpak aan de veilige kant. De vraag is hoe de berekening van de temperatuur van de onverwarmde naburige gebouwunit in de praktijk tot stand zal komen. Een standaardwaarde van de minimumtemperatuur voor temperatuurregeling kan worden gebruikt om de hogere ruimteverwarmingsbelastingen op te vangen, maar het is nog niet (juridisch) verduidelijkt of een hogere temperatuurwaarde mag worden overeengekomen voor een verwarmingssysteem met individuele ruimteregeling, bijvoorbeeld via thermostaatkranen in een flatgebouw, dan voor vorstbescherming.
Ventilatieverliezen
Met de nieuwe DIN EN 12831-1 is de berekeningsmethode voor ventilatiewarmteverliezen herzien. De nieuwe aanpak standaardiseert de berekeningsprocedure en ondersteunt verschillende soorten ventilatieconcepten. Voor het eerst zijn buitenluchtroosters, die vaak worden gebruikt in woningbouw, geïntegreerd in de berekeningsprocedure. Zoals hierboven beschreven, moeten ventilatiezones worden gedefinieerd voor de berekening van de verwarmingsbelasting. Ventilatiezones kunnen alleen worden gedefinieerd met een bestaand ventilatieconcept. Daarom moet bijvoorbeeld voor een woongebouw een ventilatieconcept volgens DIN 1946-6 worden gemaakt voordat de verwarmingsbelasting wordt berekend.
In principe worden ventilatiewarmteverliezen onderverdeeld in drie soorten:
- Verliezen door lekkages, buitenluchtroosters en de minimale luchtuitwisseling.ΦV,env/min,i(kamers) ofΦV,lek/min,i(zones)
- Verliezen door toevoerluchtΦV,sup,i
- Verliezen door overloopΦV,transfer,ij
Voor de kamers, de ventilatiezones en het gebouw worden de ventilatiewarmteverliezen berekend volgens de volgende formules:

Elk type ventilatiewarmteverlies wordt berekend aan de hand van de dichtheid en de specifieke warmtecapaciteit van de lucht, de respectieve volumestroom, het temperatuurverschil met de gemiddelde luchttemperatuur in de ruimte en de respectieve temperatuur van de binnendringende lucht:

De verliezen door lekkages, externe roosters en de minimale luchtuitwisseling zijn lucht die het gebouw binnenstroomt via de gebouwschil. De temperatuur van de lucht komt in dit geval overeen met de standaard buitentemperatuur. In het geval van verliezen door toevoerlucht wordt de buitenlucht voorverwarmd met een warmteterugwinningssysteem. Voor de berekening van ventilatieverliezen door toevoerlucht wordt de temperatuur van de toevoerlucht na warmteterugwinning gebruikt. De verliezen door overstroming worden berekend met de luchttemperatuur van de ruimte waaruit de lucht stroomt.
Luchtvolumestroom door lekkage, buitenroosters en minimale luchtverversing
Naast de definitie van de ventilatiezones is de berekening van het luchtvolume door de gebouwschil de grootste verandering in DIN EN 12831-1. Het concept is dat eerst het luchtvolume van de verse lucht van de zone wordt berekend. Vervolgens wordt de verse lucht volumestroom verdeeld over de kamers van de zone. Bovendien wordt voor het eerst het luchtvolume dat door grote openingen in de gebouwschil stroomt, meegenomen in de berekening. Onder grote openingen worden bijvoorbeeld deuren in industriële gebouwen verstaan die regelmatig worden geopend en waarvan de instroom van koude lucht niet wordt voorkomen door constructieve maatregelen (automatische deuren, laadpoorten, enz.) Grote openingen veroorzaken hoge ventilatiewarmteverliezen. Grote openingen veroorzaken grote ventilatiewarmteverliezen en mogen alleen in uitzonderlijke gevallen en in overleg met de eigenaar van het gebouw worden overwogen. Zelfs als het ventilatieconcept volgens 1946-6 voorziet in raamventilatie, wat overeenkomt met regelmatige openingen, vallen ramen niet onder de definitie van grote openingen. De minimale luchtuitwisselingssnelheid wordt nog steeds berekend op basis van het interne volume van de ruimte en de minimale luchtuitwisselingssnelheidnmin. De minimale luchtverversingssnelheid voor keukens is in de DIN SPEC gestandaardiseerd op de waarde 0,5 min-1. Voorheen werd het dubbele van deze waarde gebruikt. Voorheen werd de dubbele waarde gebruikt voor keukens ≤20 m³.
Devolumestroom door lekkages, buitenroosters en de minimale luchtverversing wordt daarom berekend uit de volumestromendoor de gebouwschil, door grote openingen, de minimale volumestroom en de technische volumestromen.

Figuur 5 geeft een overzicht van de procedure voor het berekenen van de buitenluchtvolumestroom naar de ruimte door de gebouwschil. Elke rechthoek komt overeen met een berekeningsformule en de pijlen geven aan in welke berekening de betreffende waarde is opgenomen. De volgende volumestromen zijn nodig als invoerparameters:
- Toevoer qv,sup
- Afvoerlucht qv,exh
- Afgevoerde lucht door verbranding of technische processen qv,comb
- Ontwerp van verse luchtroosters qv,ATD, ontwerp
- Door lekkage van het gebouw qv,env,50
De eerste vier volumestromen maken deel uit van het ventilatieconcept en de volumestroom door lekkage van het gebouw kan worden overgenomen uit een tabel in de DIN SPEC of worden berekend met de gemeten luchtverversing bij 50 Pa ( n50 ). In het berekeningsproces worden de ingangsvolumestromen gecombineerd tot de buitenluchtvolumestroom door de buitenschil voor de ventilatiezone en vervolgens verdeeld over de afzonderlijke ruimten. Omdat de presentatie en bespreking van alle berekeningsformules uit de figuur buiten het bestek van dit artikel zou vallen, en er bovendien geen kennis uit zou worden gehaald, wordt de figuur hier achterwege gelaten.
Voor een beter begrip van de berekening toont Figuur 5 de resultaten van de volumestromen voor de badkamer. Om de effecten van onevenwichtige ventilatie in het voorbeeld te laten zien, is het ventilatieconcept handmatig aangepast zodat de sommen van de toevoer- en afvoerluchtvolumestromen niet gelijk zijn. De totale afvoerluchtvolumestromen zijn 4 m³/h groter dan de toevoerluchtvolumestromen. De afwijking is zo klein dat de aanpassingsfactor ƒe,z nog steeds bijna 1 is. De verse lucht volumestroom door de gebouwschilqv,env,z is toch groter met de waarde van de afwijking dan de verse lucht volumestroom door extra infiltratieqv,inf-add,z. Tabel 3 toont de verse lucht volumestromen van de ruimten in een ventilatiezone. De som van de verdeelde buitenluchtvolumestromen door de gebouwschil van de ruimten komt niet overeen met de buitenluchtvolumestroom door de gebouwschil van de zone (qv,env,z), deze waarde wordt bereikt met de som van de buitenluchtvolumestromen door lekken en buitenluchtroosters ( Σqv,leak+ATG,i ). De toename van de volumestromen door de berekeningsformules is begrijpelijk, maar de redenering waarom de volumestromen van de ruimten, zoals in dit voorbeeld, bijna verdubbelen ten opzichte van de volumestroom van de ventilatiezone is ons niet duidelijk.
Meer realistische ventilatiewarmteverliezen
De wijzigingen in de berekening van ventilatiewarmteverliezen proberen de laatste stand van de techniek weer te geven. Sinds de publicatie van de oude verwarmingsbelasting in 2003 zijn de transmissiewarmteverliezen door de EnEV steeds lager geworden en is de waterdichtheid van gebouwen zodanig toegenomen dat de vochtbescherming van het gebouw vaak door extra ventilatie moet worden gewaarborgd. De extra ventilatie volumestroom kan worden bereikt met verse lucht roosters, deze worden vaak gebruikt in de bouw van nieuwe woongebouwen. De infiltratie van buitenluchtroosters kan niet worden berekend via de gebouwdichtheid en wordt in de oude norm niet in aanmerking genomen. De nieuwe berekeningsmethode vult deze leemte. Bovendien is het aandeel van ventilatiewarmteverliezen in de totale verwarmingsbelasting steeds groter geworden door de toenemende eisen van de EnEV, daarom is het nodig om de ventilatiewarmteverliezen nauwkeuriger te bepalen. Dit kan alleen worden bereikt met het ventilatieconcept, omdat het ventilatieconcept de geplande omstandigheden van het gebouw beschrijft. In de praktijk moet echter nog worden vastgesteld dat een ventilatieconcept noodzakelijk is voor de berekening van de verwarmingsbelasting.
Stooktoeslagen
Als er een onderbroken verwarmingsbedrijf is gepland, kan er rekening worden gehouden met stooktoeslagen. Omdat de warmteopwekker meestal hogere reserves heeft door de verwarming van sanitair warm water en overdimensionering leidt tot hoge energieverliezen in het deellastbereik, mogen de opwarmtoeslagen alleen in individuele gevallen worden gebruikt voor de dimensionering van de warmteopwekker. De opwarmtoeslagen worden voornamelijk gebruikt om de componenten voor warmteoverdracht en warmtedistributie te dimensioneren. Als controlemaatregelen ervoor zorgen dat onderbroken verwarmingsbedrijf wordt voorkomen bij buitentemperaturen rond het ontwerppunt, kunnen de toeslagen voor verwarming helemaal vervallen.
De verwarmingstoeslag wordt berekend op basis van het vloeroppervlak van de ruimte en de specifieke verwarmingscapaciteit:
De procedure voor het berekenen van de specifieke verwarmingscapaciteit is niet gewijzigd ten opzichte van de oude norm. De specifieke verwarmingscapaciteit wordt ontleend aan een tabel waarin onder andere rekening wordt gehouden met de factoren van de temperatuurdaling aan het einde van het onderbroken verwarmingsproces, de opwarmtijd en de warmtecapaciteit van het gebouw.
Dimensionering van warmteopwekker en warmtedistributiesysteem
Bij de dimensionering is het belangrijk om te begrijpen dat de verwarmingsbelasting van het gebouw niet de som is van de verwarmingsbelastingen van de ruimte en ook niet de som van de verwarmingsbelastingen van de gebouwunits. Het verschil ontstaat doordat de warmteoverdracht naar aangrenzende gebouwunits niet wordt meegenomen in de verwarmingsbelasting van het gebouw. Het verschil kan aanzienlijke gevolgen hebben voor het ontwerp van het warmtedistributiesysteem. Als centrale verwarming is gepland voor het hele gebouw, wordt de warmteopwekker gedimensioneerd met de verwarmingsbelasting van het gebouw (plus de verwarming van sanitair warm water, indien van toepassing) en moet het warmtedistributiesysteem buiten de gebouwunits ook worden gedimensioneerd met de gereduceerde verwarmingsbelasting.
Zelfs als de warmteopwekking decentraal plaatsvindt voor elke gebouwunit, is het verwarmingsvermogen (zonder warmwaterbereiding) voor de warmteopwekker nog steeds lager dan de som van de ruimteverwarmingsbelastingen. Dit is te wijten aan het feit, dat hierboven al is beschreven, dat er hogere infiltratievolumestromen worden aangenomen voor kamers dan in de zone als gevolg van een normatieve toeslag.
Vergelijking met de oude verwarmingsbelasting
Voor het gepresenteerde gebouw is de verwarmingsbelasting berekend volgens de nieuwe en oude berekeningsmethoden. Om de invloed van de temperatuur van de onverwarmde naburige gebouwunits in te schatten, worden twee berekeningen uitgevoerd waarbij eenmaal de minimumtemperatuur θu,min = 5 °C (alleen vorstbeveiliging) en eenmaal θu,min = 15 °C is. Voor de locatie van het gebouw is de standaard buitentemperatuur volgens DIN SPEC θe = -8,6 °C, in de oude verwarmingsbelasting wordt een standaardbuitentemperatuurθu,min = -12 °C berekend. Om de resultaten van de oude en nieuwe verwarmingsbelasting beter vergelijkbaar te maken, wordt er nog een berekening uitgevoerd met de nieuwe verwarmingsbelasting, waarbij de standaard buitentemperatuur wordt aangepast aan de waarde van de oude verwarmingslastberekening. In de berekening van de oude verwarmingsbelasting worden de kamers van een naburige flat in hetzelfde gebouw niet als onverwarmd beschouwd, om deze reden is deze benadering niet opgenomen in de berekening van de oude verwarmingsbelasting. Omdat de benadering om de flat 's nachts als onverwarmd te beschouwen deel uitmaakt van de nieuwe verwarmingsbelasting, wordt in de vergelijkende berekening met dezelfde standaard buitentemperatuur een minimumtemperatuur vanθu,min = 15 °C gebruikt. De randvoorwaarden van beide berekeningen zijn dus niet identiek, maar ze komen overeen met een standaardberekening volgens de regels van de betreffende norm met dezelfde standaard buitentemperatuur.
Figuur 6 toont de verwarmingsbelasting van het gebouw voor de vier beschreven overwegingen. Zoals te zien is in de formules van de transmissieverliezen, wordt een verschillend aantal warmteoverdrachtscoëfficiënten gebruikt in de berekeningen voor het gebouw, de gebouwunits en de kamers. In de verwarmingsbelasting van het gebouw worden de verliezen naar de onverwarmde naburige gebouwunit niet meegenomen. Deze verliezen worden alleen meegenomen in de ruimteverwarmingsbelastingen en de verwarmingsbelastingen van de gebouwunits. De volumestroom van de ventilatiewarmteverliezen door infiltratie van de ruimten is groter dan de volumestroom van de ventilatiezone (zie Tabel 3). Het effect van de twee factoren op de verwarmingsbelasting wordt getoond in figuur 6 aan de hand van de verwarmingsbelasting van het gebouw, de totale verwarmingsbelasting van de gebouwunits en de totale ruimteverwarmingsbelasting van het hele gebouw.
Voor de verwarmingsbelasting van het gebouw hebben de verschillende minimumtemperaturenθu,min geen invloed op het resultaat van de transmissieverliezen, maar het resultaat wordt aanzienlijk beïnvloed door de verschillende onderliggende standaard buitentemperaturen. Berekeningen 3 en 4 van de verwarmingsbelasting van het gebouw laten zien dat de ventilatiewarmteverliezen voor dit gebouw met ongeveer 0,5 kW toenemen met de nieuwe berekening van de verwarmingsbelasting, wat een toename van de ventilatiewarmteverliezen van 17% betekent. Door de hogere standaard buitentemperatuur is de verwarmingsbelasting van het gebouw bij de nieuwe verwarmingslastberekening echter lager dan bij de oude verwarmingslastberekening. Dit verandert wanneer de totalen van de verwarmingsbelastingen van de gebouwunits en de ruimteverwarmingsbelastingen worden bekeken. In deze overwegingen is de verwarmingsbelasting het laagst volgens de oude berekening. Dit komt voornamelijk door de onverwarmde naburige gebouwunits. De invloed van de minimumtemperatuur θu,minishet best te zien tussen berekeningen 1 en 2. Het verhogen van de minimumtemperatuur vermindert de transmissieverliezen met iets minder dan 2 kW, wat overeenkomt met een vermindering van 14 %. De ventilatiewarmteverliezen van de ruimten nemen toe vergeleken met de ventilatieverliezen van de gebouwunits en zijn ook groter vergeleken met de oude verwarmingslastberekening.
Figuur 7 toont de ruimteverwarmingsbelastingen van de flat rechts op de begane grond voor de vier berekeningen. Vooral in de keuken, die grenst aan twee gebouwunits, zijn de transmissieverliezen groter vergeleken met de oude verwarmingsbelasting. De ruimteverwarmingsbelastingen van berekening 2 komen ongeveer overeen met de waarde van de oude verwarmingsbelasting. Hier houden de verliezen elkaar bijna in evenwicht door de nadering van de onverwarmde naburige gebouwunits en de hogere standaard buitentemperatuur.
Conclusie
De nieuwe berekening van de verwarmingsbelasting houdt rekening met de wettelijke en dus structurele veranderingen van de afgelopen 15 jaar. De hogere eisen van de EnEV hebben ertoe geleid dat naleving van vochtbescherming belangrijker is geworden en dat ventilatiewarmteverliezen een groter aandeel hebben in de totale verwarmingsbelasting. Bovendien wil de verwarmingslastberekening rekening houden met de latere werkelijke werking van het gebouw. Hiervoor worden de gebouwunit en de ventilatiezone geïntroduceerd. Om elke kamer aan een gebouwunit en een ventilatiezone te kunnen toewijzen, is aan het begin van de verwarmingslastberekening meer informatie van de gebouweigenaar nodig dan voorheen.
De aanpassingen aan de nieuwe verwarmingslastberekening betekenen dat de resultaten zullen verschillen ten opzichte van de oude verwarmingslastberekening. Het verschil is sterk afhankelijk van het individuele gebouw en de locatie. In het gepresenteerde voorbeeld nemen de transmissiewarmteverliezen van de kamers toe door de aangrenzende gebouwunits, omdat deze in de nieuwe verwarmingslastberekening als onverwarmd worden beschouwd. In gebouwen met slechts één gebouwunit, bijvoorbeeld eengezinswoningen, treden geen verliezen op naar een aangrenzende gebouwunit. De transmissieverliezen van het hele gebouw zullen doorgaans lager zijn dan bij de oude verwarmingslastberekening vanwege de hogere standaard buitentemperaturen. In de praktijk zullen de definitie van de gebouwunits en de bepaling van de minimumtemperaturen de beslissende factoren zijn voor het beïnvloeden van de transmissieverliezen.
Als de wijzigingen in de verwarmingslastberekening worden bekeken vanuit het oogpunt van inputinspanning, leidt alleen de toewijzing van de ruimten aan de gebouwunits en ventilatiezones tot een kleine hoeveelheid extra inspanning. De gepresenteerde berekeningen worden automatisch uitgevoerd in het programma, zodat de gebruiker de verwarmingslasten net zo snel ontvangt en verder kan gaan met het ontwerp van de radiatoren of vloerverwarmingssystemen.
De nieuwe berekening van de verwarmingsbelasting wordt pas van kracht nadat de nationale aanvulling DIN SPEC 12831-1 is gepubliceerd. Dit wordt ten vroegste in de zomer van 2019 verwacht. Tot die tijd moet u gewoon blijven werken met de huidige verwarmingslastberekening. Alle onderhoudsklanten van de LINEAR-software krijgen de nieuwe verwarmingslastberekening gratis via een update wanneer de DIN SPEC wordt gepubliceerd.








