E-learningcursus: Gasleidingnetwerk ontwerpen in Revit
In de nieuwste cursus op ons e-learning portaal laten we je zien hoe je leidingen ontwerpt en een grote verscheidenheid aan netwerkcomponenten plaatst in de gashandel. Leer aan welke eisen de constructie moet voldoen en waar LINEAR je ondersteunt om het project slim te managen en de constructie makkelijker te maken.
Cursus structuur
Aanleg gasleidingnetwerken
1 Algemene informatie
1.1 Inleiding
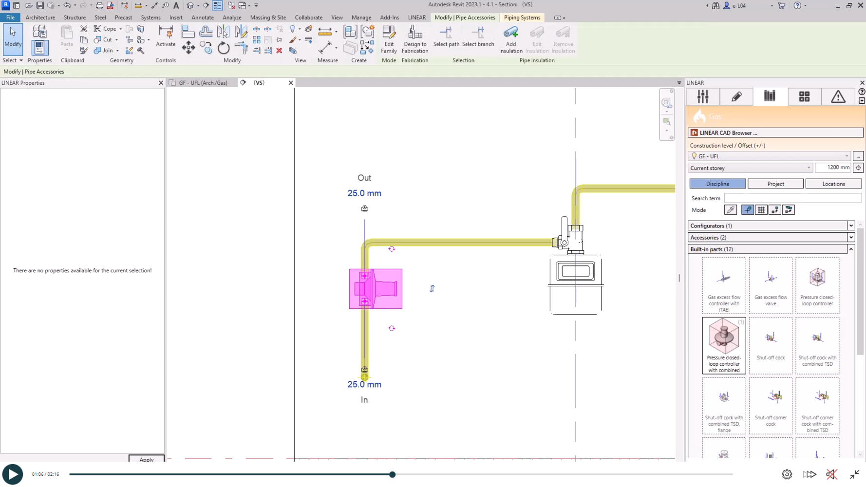
2 Componenten plaatsen
2.1 Componenten plaatsen en uitlijnen
3 Pijpen construeren
3.1 Leidingen construeren en uitlijnen
3.2 De componenten verbinden
4 Ingebouwde onderdelen toevoegen
4.1 Veiligheidsonderdelen die nodig zijn voor de buizen
We laten je zien hoe je eenvoudig componenten uit onze uitgebreide bibliotheken in het model kunt plaatsen.
Daarna volgt de aanleg van het leidingnetwerk en de aansluiting van de componenten.
Tot slot leer je hoe je gemakkelijk extra ingebouwde componenten kunt integreren in je netwerk.
The cookie window is suppressed by a browser extension. Please unblock the website.
About Cookies
This website uses cookies. Those have two functions: On the one hand they are providing basic functionality for this website. On the other hand they allow us to improve our content for you by saving and analyzing anonymized user data. You can redraw your consent to using these cookies at any time. Find more information regarding cookies on our Data Protection Declaration and regarding us on the Imprint.