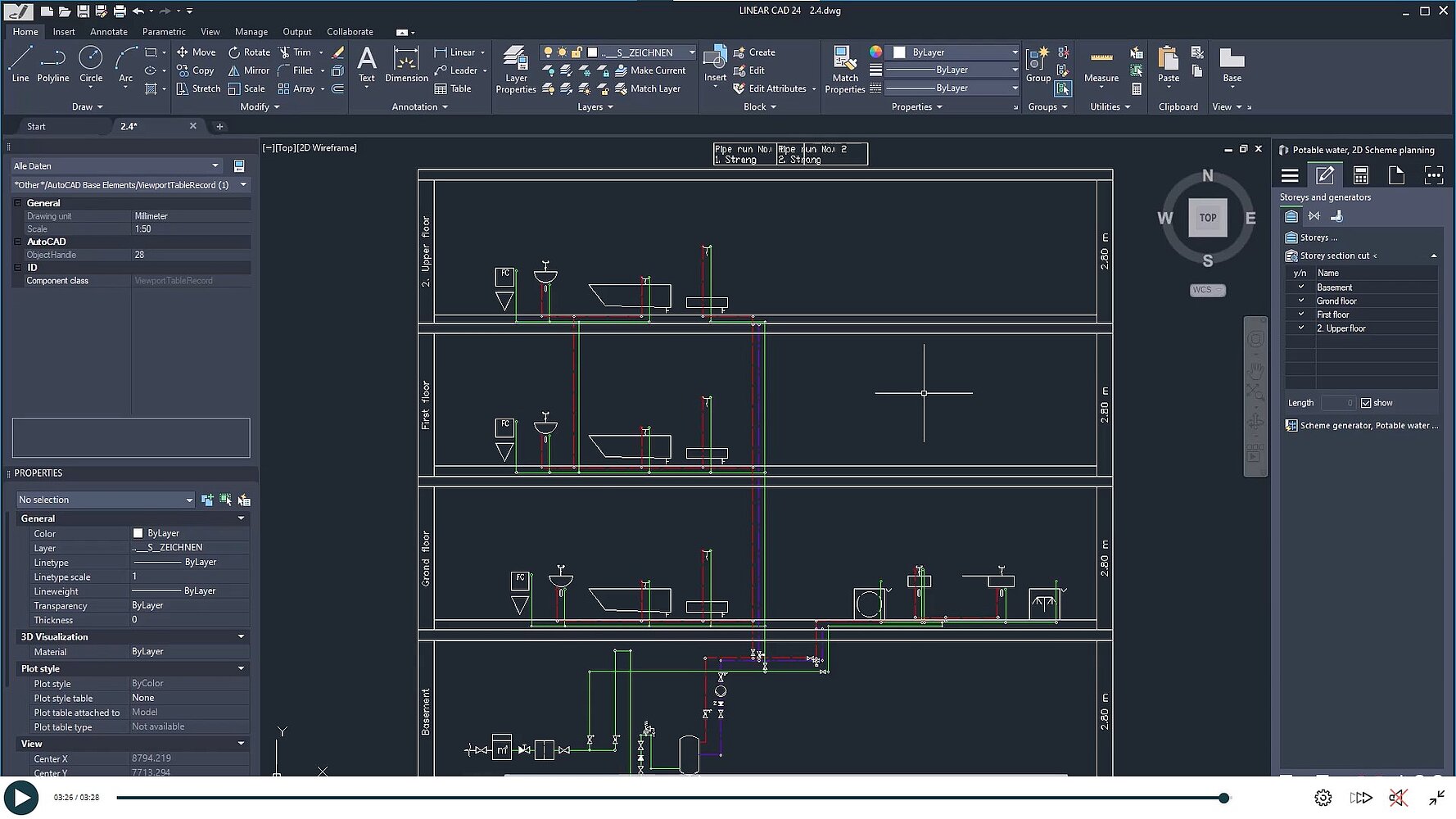
E-learning course on the scheme generator in AutoCAD
Erfahren Sie in diesem Kurs, wie Sie mit dem LINEAR Schemagenerator schnell und unkompliziert Strangschemata erstellen. Mittels Drag&Drop erhalten Sie im Handumdrehen ein berechenbares Schema in den Gewerken Heizung, Trinkwasser, Abwasser und Gas.
Course: Creating a Scheme with the Scheme Generator
Content
General Information
Scheme Generator in the Discipline Potable Water
Creating a Scheme
Making Changes to the Scheme
Component Data and Section Data
Adding Basement Manifolds and Secondary Pipe Runs
Scheme Generator in Other Disciplines
Waste Water
Heating
Gas
We will show you how to integrate all components into your schematic design in just a few steps using the LINEAR scheme generator.
You can also enter technical data to detail your scheme. This will then also be taken into account in the calculation.
The creation of the basement distribution and the integration of several strings is also part of the course.
The cookie window is suppressed by a browser extension. Please unblock the website.
About Cookies
This website uses cookies. Those have two functions: On the one hand they are providing basic functionality for this website. On the other hand they allow us to improve our content for you by saving and analyzing anonymized user data. You can redraw your consent to using these cookies at any time. Find more information regarding cookies on our Data Protection Declaration and regarding us on the Imprint.