Автоматическое создание схем в Revit
Откройте для себя инновационный рабочий процесс "Схема" для автоматического создания схем в Revit! В версии V24 мы выполнили давнее пожелание многих заказчиков ‒ реализовать проектирование схем в Autodesk Revit. При этом мы остаемся верны нашему девизу "Напрямую, без обходных путей" и избегаем лишних задач. Мы не только предлагаем "простые" инструменты для ручного создания схемы, а разработали автоматизацию, которая генерирует схему на основе всей доступной информации из модели. Все генерируемые элементы напрямую связаны с их аналогами в модели, так как по сути являются еще одним представлением той же информации. С помощью наших специальных функций можно по-прежнему выполнять целенаправленную ручную корректировку. Мы начали с разработки схем для водоснабжения, так как оно, безусловно, представляет наиболее серьезные трудности. Далее будут добавляться и другие дисциплины.
Решение LINEAR в новом дизайне
Откройте для себя полностью обновленный пользовательский интерфейс решений LINEAR для AutoCAD и Revit. Новый пользовательский интерфейс панели управления LINEAR с новыми, единообразными иконками для каждой команды легко интегрируется в платформу CAD и оптимально поддерживает вас на всех этапах работы.
Диалог свойств LINEAR в AutoCAD
В рамках редизайна пользовательского интерфейса был интегрирован новый диалог, значительно улучшающий работу с информацией в AutoCAD. Переработанный диалог свойств LINEAR является настоящим универсалом: он детально отображает всю необходимую информацию ‒ от этажей, разделов и слоев до расчетных данных выбранных объектов, и не только выступает в качестве чистого инструмента вывода, но и позволяет непосредственно изменять значения. Скорректированные параметры сразу же учитываются в последующих расчетах. Особенно полезна функция фильтрации по одинаковым типам компонентов. Она позволяет быстро и легко корректировать значения для множества компонентов одновременно. Оцените, как диалог свойств LINEAR упрощает и оптимизирует рабочий процесс в AutoCAD! Поддерживать полный контроль над всеми параметрами еще никогда не было так просто.
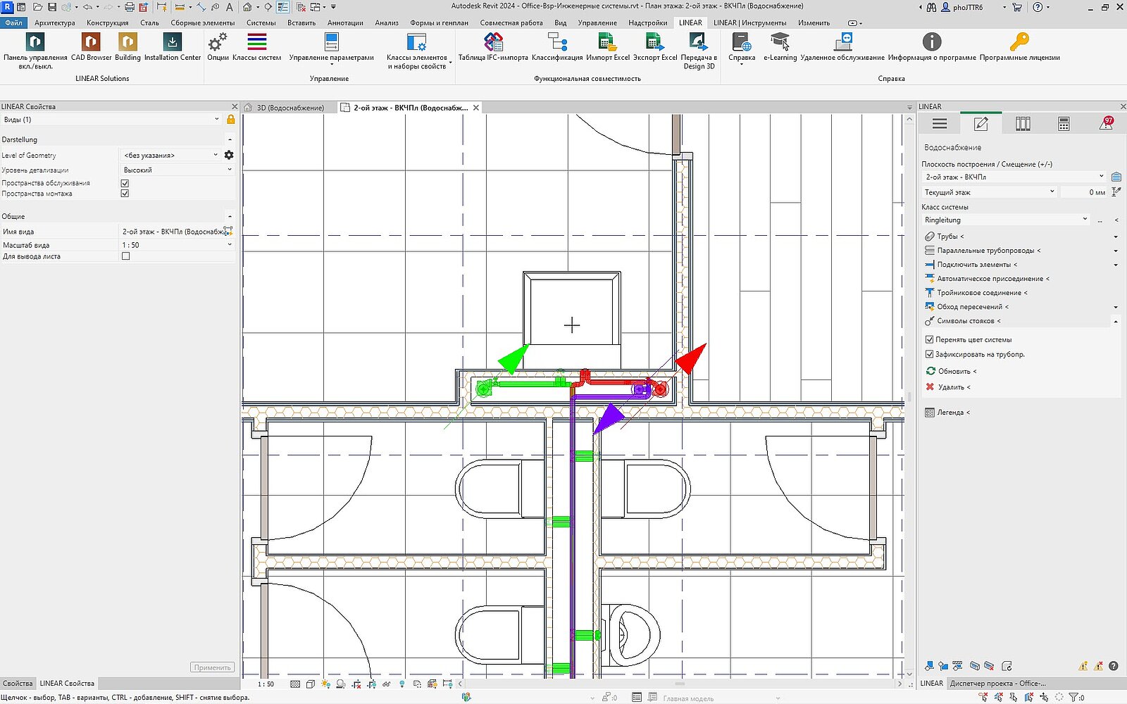
Символы стояков на планах этажей в Revit
Самая востребованная функция нашего канала LINEAR IDEA CHANEL нашла свое отражение в программном обеспечении: используйте новую функцию символов стояков для автоматического размещения соответствующих символов на поэтажных планах. LINEAR Desktop анализирует топологию сети и всегда выбирает нужный символ для каждой ситуации. При возникновении неопределенности срабатывает интеллектуальная автоматика: в этом случае сначала устанавливается "неопределенный" символ и генерируется соответствующий отчет. После этого вы сможете вручную выбрать нужный символ в свойствах Revit.
Это лишь небольшая часть полного списка возможностей V24! Продолжение читайте в разделе What's new




