Kurs: Obliczanie sieci kanałów powietrznych
Treść kursu
- 1. informacje ogólne
- 1.1 Przedmowa
- 2 Przegląd obliczeń
- 2.1 Pierwsze obliczenia i dialog dotyczący raportów
- 2.2 Dialog pomieszczenia
- 2.3 Poprawianie innych komunikatów raportu
- 3 Konfiguracja
- 3.1 Konfiguracja
- 4 Ustawianie komponentów
- 5. dalsze ustawienia
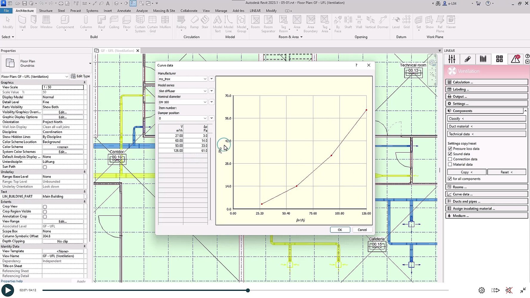
- 5.1 Dane krzywej
- 5.2 Tabele kanałów i izolacji
- 6 Końcowe ustawienia i obliczenia
- 6.1 Wizualizacja
- 6.2 Przeliczanie wymiarów
- 6.3 Etykietowanie
- 6.4 Dane wyjściowe
Write a comment
You must be logged in to comment.







