Nowy Moduł księga pomieszczeń dla Idealnego Zarządzania Danymi Pomieszczeń
Nowy moduł księga pomieszczeń w LINEAR Building stanowi decydujący krok w kierunku planowania zgodnego z BIM. Umożliwia zarządzanie cyfrowymi, czytelnymi maszynowo parametrami pomieszczeń we wczesnych fazach planowania – niezależnie od tego, czy istnieje kompletny model budynku CAD, czy dane pochodzą z programu Excel. Synchronizacja Excel księga pomieszczeń dostępna od wersji 25.2 została kompleksowo rozszerzona w wersji 26.0. Nowy moduł może przechowywać, wyświetlać, edytować, weryfikować i obliczać praktycznie każdy możliwy parametr pomieszczenia. Natywne parametry LINEAR, parametry zdefiniowane przez użytkownika oraz importy CAD i Excel są w równym stopniu obsługiwane.
Dla efektywnej organizacji wykorzystujesz indywidualnie dostosowywane konfiguracje struktury: Oprócz klasycznej struktury budynku pomieszczenia mogą być grupowane według typu pomieszczenia, stref lub innych kryteriów. Wprowadzanie danych odbywa się w tematycznie uporządkowanych zestawach właściwości, które są przejrzyście wyświetlane w formie tabelarycznej. Inteligentne filtry, funkcje sortowania i automatyczne kontrole poprawności pomagają natychmiast identyfikować błędy i odchylenia.
Informacje zebrane w module księga pomieszczeń stanowią cenną podstawę do obliczeń, takich jak obciążenia grzewcze i chłodnicze, i są synchronizowane we wszystkich odpowiednich modułach planowania LINEAR. Księga pomieszczeń służy jako centralny punkt zbierania danych, który może być stale utrzymywany i używany przez wszystkich uczestników projektu.
Korzyści w skrócie:
- Zarządzanie parametrami pomieszczeń zgodne z BIM z CAD lub Excel
- Elastyczne i indywidualne konfiguracje struktury dla dostosowanych klasyfikacji
- Tematycznie posortowane zestawy właściwości z funkcjami filtrowania, sortowania i sprawdzania poprawności
- Wsparcie automatycznej walidacji danych i porównań cel/rzeczywistość
- Płynna synchronizacja i przepływ danych przez wszystkie fazy planowania i moduły
- Centralne zbieranie danych dla współpracy i efektywnego zarządzania projektem
Automatyczne Wymiarowanie w Planowaniu Tras
Sprawdzone planowanie tras zostało rozszerzone o wydajny moduł obliczeniowy. Umożliwia to proste, szybkie i precyzyjne określanie wymiarów kanałów i przewodów poprzez topologię sieci dystrybucyjnej planowanych tras już we wczesnych fazach planowania – na podstawie istniejących informacji o pomieszczeniach.
Dane dotyczące mocy i przepływu objętościowego są pobierane bezpośrednio z pomieszczeń MEP. Pozwala to planistom rejestrować centralne dane budynku w LINEAR Building na wczesnym etapie i automatycznie przenosić je do pomieszczeń MEP:
- Zapotrzebowanie na ciepło → szacunkowe obciążenia grzewcze
- Zapotrzebowanie na chłód → obciążenia chłodnicze metodą uproszczoną
- Przepływy objętościowe powietrza zewnętrznego → określanie ilości powietrza
- Konsumenci wody ściekowej/pitnej → rejestracja za pośrednictwem nowego modułu rezerwacji pomieszczeń
Za pośrednictwem punktów zasilania, zbierania i przekazywania – podobnych do znanych obiektów „początek/koniec sieci" – przypisywane są trasom dodatkowe informacje dotyczące wymiarowania:
- Definicja systemów wytwórczych
- Przypisane klasy systemów
- Rozpięcia temperatury (zasilanie/powrót)
- Pokrycie zdefiniowanych potrzeb przez poszczególne systemy
- Dodatkowe warunki brzegowe do obliczeń
Poprzez łączenie wielu pomieszczeń w strefy zaopatrzenia z punktami zbiorczymi główne trasy mogą być wymiarowane szczególnie efektywnie. Obliczone moce są automatycznie zbierane za pośrednictwem zaprojektowanych tras i odpowiednio przypisanych systemów w komponentach początkowych i końcowych oraz wymiarowane odcinkami. Określone wymiary mogą być następnie bezpośrednio wykorzystane w znanej koncepcji tras – od definiowania przekrojów poprzecznych po automatyczną generację wstępnie wymiarowanych przewodów w modelu.
Korzyści w skrócie
- Wyższa pewność planowania dzięki wczesnym, precyzyjnym wymiarom
- Znacznie zmniejszony nakład pracy na planowanie dzięki automatycznym obliczeniom
- Ciągła spójność danych od definicji potrzeb do generowania modelu
- Wydajna, przejrzysta i zgodna z BIM planem we wszystkich dyscyplinach
Dzięki nowemu modułowi obliczeniowemu planowanie tras staje się integralną częścią wczesnej fazy projektowania i wstępnego planowania.
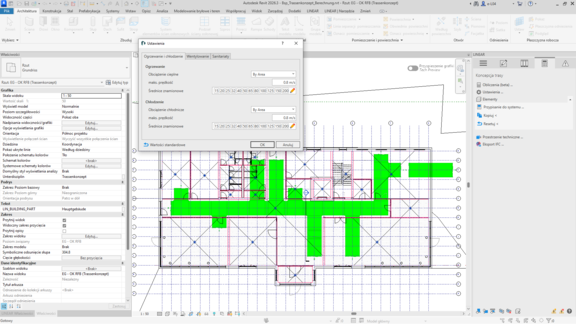
Wizualizacja 3D Parametrów Pomieszczeń MEP
Dzięki wizualizacji danych pomieszczeń możesz w przejrzysty sposób przedstawić wszystkie parametry swoich pomieszczeń MEP w widoku 3D. Funkcja tworzy kolorowe bryły wizualizacyjne dla wybranych parametrów pomieszczeń najpierw w tymczasowym widoku – idealny do szybkiej analizy i oceny danych planistycznych. Dzięki temu masz przejrzystą wizualizację we wszystkich fazach planowania, którą możesz wykorzystać do różnych celów: sprawdź wcześnie rozmiary pomieszczeń, obłożenie lub typy pomieszczeń, lub szybko i intuicyjnie zweryfikuj temperatury projektowe swojego planowania. Parametry ciągłe, takie jak temperatury lub przepływy objętościowe, są wyświetlane za pomocą dostosowywalnych gradientów kolorów, podczas gdy parametry dyskretne, takie jak typy pomieszczeń lub kategorie użytkowania, są automatycznie kolorowane. Po dopasowaniu wizualizacji do wymagań możesz zapisać tymczasowy widok i przekształcić go w trwale dostępny widok Revit, którego możesz używać w dowolnym momencie do planów lub prezentacji.
Korzyści w skrócie
- Szybka analiza dzięki tymczasowym widokom 3D z kolorowo kodowanymi parametrami pomieszczeń i automatyczną legendą
- Elastyczna wizualizacja typów danych ciągłych i dyskretnych z indywidualnymi schematami kolorów
- Możliwość zastosowania we wszystkich fazach planowania – od wczesnej koncepcji pomieszczeń do końcowej weryfikacji projektu
- Zapisywanie widoków wielokrotnego użytku do profesjonalnej dokumentacji i prezentacji
Ta innowacyjna funkcja wizualizacji sprawia, że złożone dane pomieszczeń są natychmiast zrozumiałe i zapewnia pełną kontrolę nad widokami analitycznymi na każdym etapie projektu.
Neutralne Listy Materiałowe jednym kliknięciem – Usuwaj dane producenta i zarządzaj tekstami skróconymi
Chcesz korzystać z podzespołów producentów, ale uzyskać całkowicie neutralną listę materiałową? Dzięki opcji „Materiał na wyjście bez producenta” to teraz wyjątkowo łatwe. Wszystkie informacje producenta są automatycznie usuwane z listy materiałowej – idealne do przetargów otwartych lub zestawień materiałowych obejmujących cały projekt.
Ponadto możesz indywidualnie edytować wszystkie teksty skrócone, w tym te pobrane z przeglądarki CAD lub armatur użytkownika. Tak dodajesz elastycznie dodatkowe informacje i dopasowujesz zestawienia dokładnie pod swoje potrzeby.
Korzyści w skrócie
- Neutralizacja listy materiałowej jednym kliknięciem
- Pełna kontrola i indywidualna edycja tekstów skróconych
- Elastyczne dopełnianie dodatkowych informacji w każdej chwili
- Optymalna transparentność na potrzeby przetargów i dokumentacji
Edytor Schematów: Inteligentna Edycja z Pełną Integracją Modelu
Edytor Schematów rewolucjonizuje edycję schematów: pracuj bezpośrednio na swoich schematach – niezależnie od tego, czy pochodzą z modeli Revit, czy zostały przeniesione z LINEAR Building – bez utraty połączeń komponentów. Przesunięcie elementów automatycznie aktualizuje przewody i wbudowane komponenty. Brak ręcznych napraw, brak przerwanych połączeń. Dzięki inteligentnym funkcjom układu (zmiana pozycji, przerzucanie, wyrównanie) dostosowuj swoje schematy do nowych wymagań w sekundach, a nie godzinach. Wszystkie zmiany są niezawodnie zapisywane z powrotem w widoku rysunku. Edycja schematów pozostaje spójna i wydajna.
Korzyści w skrócie
- Automatyczne aktualizowanie połączeń – brak potrzeby przetwarzania końcowego
- Inteligentne funkcje układu do szybkich i elastycznych dostosowań
- Pełna integralność modelu od schematu do widoku rysunku
- Bezproblemowa integracja z Revit – dwukierunkowe łącze
To tylko niewielki wybór z pełnej listy funkcji V26! Sprawdź pełną listę w zakładce LINEAR What's New.























